Dreizimmerwohnung Vojak, Rijeka, Trsat - Krimeja, Rijeka

€ 187.000
3
58 m²
1
0
Nein

Notiz

Anzeige aktualisiert am: 22.01.2026
Beschreibung

This description has been translated automatically and may not be accurate

Referenz: 4785

Wohnung Vojak, Rijeka, 58,62m2

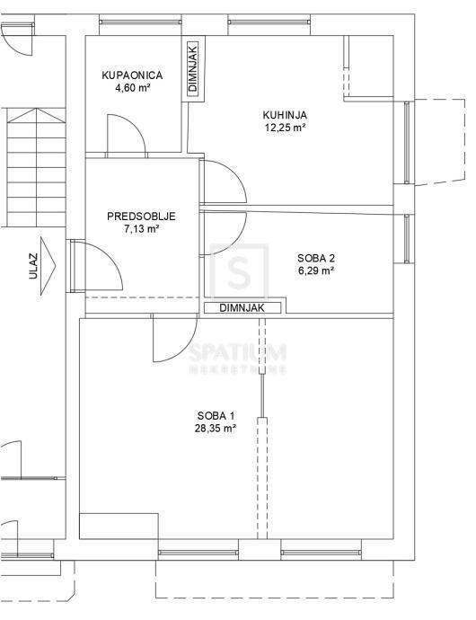
TRSAT, VOJAK, wir haben ein Angebot für eine Zweizimmerwohnung zur Renovierung mit einer Fläche von 58,62 m2 erhalten, die sich im Erdgeschoss eines Wohngebäudes befindet. Es wird leer verkauft und besteht aus Flur, Küche, zwei Zimmern, wobei das größere Zimmer mit einer vorgefertigten Holzwand in zwei etwa gleich große Zimmer unterteilt wurde, und einem Badezimmer. Es ist auch ein Holzschuppen vorhanden. Es ist mit zwei Klimaanlagen ausgestattet und verfügt als zusätzlichen Komfort auch über einen Gasanschluss. Die Ausrichtung der Wohnung ist Süd, Ost und Nord, was den ganzen Tag über für reichlich natürliches Licht sorgt. Es befindet sich in erstklassiger Lage, umgeben von Grün, in der Nähe von öffentlichen Verkehrsmitteln, Schulen, Kindergärten, Geschäften, Parks, dem Universitätscampus auf Trsat und anderen wichtigen Annehmlichkeiten, was es ideal sowohl zum Wohnen als auch als Investition macht. Vojak ist ein ruhiges Viertel in Rijeka, das für seine hervorragende Mikrolage und die Nähe zu allen wichtigen Annehmlichkeiten wie Kindergärten, Schulen, Spielplätzen und Trsat bekannt ist. Diese Wohnung stellt eine ideale Gelegenheit für das Familienleben oder als Mietinvestition dar. Für alle weiteren Informationen wenden Sie sich bitte vertrauensvoll an uns. Toni Jelčić Maklerassistent +385 91 781 6317 toni@spatium.hr Spatium Real Estate +385 51 272 903 info@spatium.hr

ID CODE: 4785

Toni Jelčić
Agent s licencom
Mob: +385 91 781 6317
Tel: +385 51 452 479
E-mail: toni@spatium.hr
www.spatium.hr
Merkmale
Art
Wohnung
Vertrag
Verkauf
Etage
Erdgeschoss
Stockwerke im Gebäude
5
Aufzug
Nein
Fläche
58 m²
Zimmer
3
Schlafzimmer
2
Badezimmer
1
Balkon
Nein
Terrasse
Nein
Heizung
Unabhängige heizung, heißluft heizung
Klimaanlage
Eigenständig, kalt / warm
Preisinformationen
Preis
€ 187.000
Preis pro m²
3.224 €/m²
Energieeffizienz
  • Heizung

    Unabhängige heizung, heißluft heizung
  • Klimatisierung

    Eigenständig, kalt / warm
  • Energieausweis

    Nicht klassifizierbar
Entdecken Sie jeden Winkel des Anwesens
+7
Zusätzliche Optionen

Inserenten kontaktieren

Oder