Dreizimmerwohnung neu, zweite Etage, Kanfanar

€ 345.000
3
124 m²
2
2

Notiz

Anzeige aktualisiert am: 10.04.2025
Beschreibung

This description has been translated automatically and may not be accurate

Referenz: 340

Neubau in Kanfanar mit insgesamt 8 Wohnungen, dessen Fertigstellung im ersten Quartal 2025 erwartet wird.

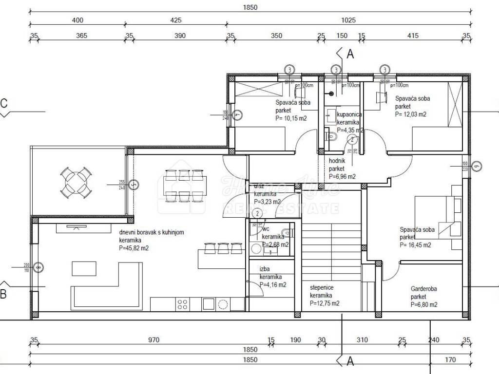
Die Wohnung im zweiten, letzten Stock hat eine Fläche von 124 m2 und besteht aus einem Eingangsbereich, 3 Schlafzimmern, von denen eines ein eigenes Ankleidezimmer hat, einem Badezimmer, einer Toilette, einer Küche mit Esszimmer und einem Wohnzimmer mit Zugang zu einer nach Westen ausgerichteten Terrasse mit herrlichem Blick auf die umliegende Natur.

Das Badezimmer wird über eine Fußbodenheizung beheizt, während in anderen Räumen Klimaanlagen installiert sind.
Die Böden in den Badezimmern werden mit hochwertigen italienischen Keramikfliesen und in den anderen Räumen mit Vinyl ausgelegt.
Das Gebäude wird mit einer Fassadenstärke von 10 cm isoliert und die Fenster bestehen aus PVC mit Dreischichtglas.
Jede Wohnung verfügt über 2 Parkplätze.

Das Gebäude befindet sich in dem Teil der Siedlung, in dem die meisten Ferienhäuser gebaut werden.
Entfernungen: Meer: 17 km, Zentrum von Rovinj: 18 km, Zentrum von Kanfanar: 700 m, Flughafen Pula: 34 km, Flughafen Venedig: 246 km, nächste Autobahnauffahrt: 4 km.

ID CODE: 340

David Cetina
Agent s licencom HGK:163/2016
Mob: +385(0)91/1222334
Tel: +385(0)91/1222334
E-mail: info@home-line.hr
www.home-line.hr
Merkmale
Art
Wohnung
Vertrag
Verkauf
Etage
2 etage
Fläche
124 m²
Zimmer
3
Schlafzimmer
3
Badezimmer
2
Garage, parkplätze (auto)
1 parkplatz(e)
Klimaanlage
Eigenständig, kalt / warm
Preisinformationen
Preis
€ 345.000
Preis pro m²
2.782 €/m²
Energieeffizienz
  • Baujahr

    2025
  • Zustand

    Neu / Im Bau
  • Klimatisierung

    Eigenständig, kalt / warm
  • Energieausweis

    Auf Zertifizierung wartend
Entdecken Sie jeden Winkel des Anwesens
+10
Zusätzliche Optionen

Inserenten kontaktieren

Oder