1/3


Dreizimmerwohnung Čižići, Dobrinj, Dobrinj
€ 265.000
Anzeige aktualisiert am: 22.01.2026
Beschreibung
This description has been translated automatically by Google Translate and may not be accurate
Referenz: 3-70246
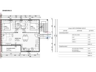
Wohnung Čižići, Dobrinj, 80,84m2
ID CODE: 3-70246
Anita Đaković
Prodajni predstavnik
Mob: +385 91 641 0027
Tel: + 385 51 627 667
E-mail: a.dakovic@remax-crikvenica.hr
remax-centarnekretnina.com
Merkmale
- Art
- Wohnung
- Vertrag
- Verkauf
- Etage
- 1 etage
- Stockwerke im Gebäude
- 2
- Aufzug
- Nein
- Fläche
- 80 m²
- Zimmer
- 3
- Schlafzimmer
- 2
- Badezimmer
- 1
- Balkon
- Ja
- Terrasse
- Nein
- Klimaanlage
- Eigenständig, kalt / warm
Preisinformationen
- Preis
- € 265.000
- Preis pro m²
- 3.313 €/m²
Energieeffizienz
Baujahr
2025Klimatisierung
Eigenständig, kalt / warmEnergieausweis
Nicht klassifizierbar
Zusätzliche Optionen