Einfamilienhaus Selina, Sveti Lovreč, Sveti Lovreč

€ 1.290.000
5
300 m²
3+
Nein
Balkon

Notiz

Anzeige aktualisiert am: 13.03.2026
Beschreibung

This description has been translated automatically and may not be accurate

Referenz: 1047-44

Poreč, Umgebung – Idyllisches Haus mit wunderschöner Aussicht

Poreč – Umgebung – Moderne Villa im Bau mit Pool und Panoramablick

In einer ruhigen Siedlung in der Umgebung von Poreč befindet sich diese moderne Villa in der Endphase des Baus. Die Immobilie liegt auf einem großzügigen Grundstück und bietet 300 m² Wohnfläche, die Privatsphäre und Komfort mit ausgezeichneter Anbindung an nahegelegene Städte und die Küste vereint.

Die Villa wurde mit Fokus auf Funktionalität und Lebensqualität entworfen. Das geräumige Wohnzimmer mit großen Glasfronten sorgt für viel Tageslicht und direkten Zugang zur Terrasse. Eine moderne Küche, luxuriöse Schlafzimmer und hochwertig ausgestattete Bäder bieten maximalen Komfort.

Der Außenbereich umfasst einen Infinity-Pool, einen Whirlpool und eine Feuerstelle – ideal zum Entspannen und geselligen Beisammensein. Dank der erhöhten Lage bietet das Grundstück einen Panoramablick auf die umliegende Landschaft, das Meer und die entfernten Berge.

Diese Villa vereint modernes Design, Komfort und natürliche Schönheit und ist damit die perfekte Wahl für alle, die einen exklusiven Lebensstil oder eine prestigeträchtige Investition in Küstennähe suchen.

Die Fertigstellung des Baus ist in Kürze geplant, mit der Möglichkeit, abschließende Details nach den Wünschen der zukünftigen Eigentümer anzupassen.

ID CODE: 1047-44
Merkmale
Art
Einfamilienhaus
Vertrag
Verkauf
Aufzug
Nein
Fläche
300 m²
Zimmer
5
Schlafzimmer
4
Badezimmer
3+
Balkon
Ja
Terrasse
Nein
Andere Merkmale
  • Alarmanlage
Preisinformationen
Preis
€ 1.290.000
Preis pro m²
4.300 €/m²
Energieeffizienz
  • Baujahr

    2025
  • Energieausweis

    Nicht klassifizierbar
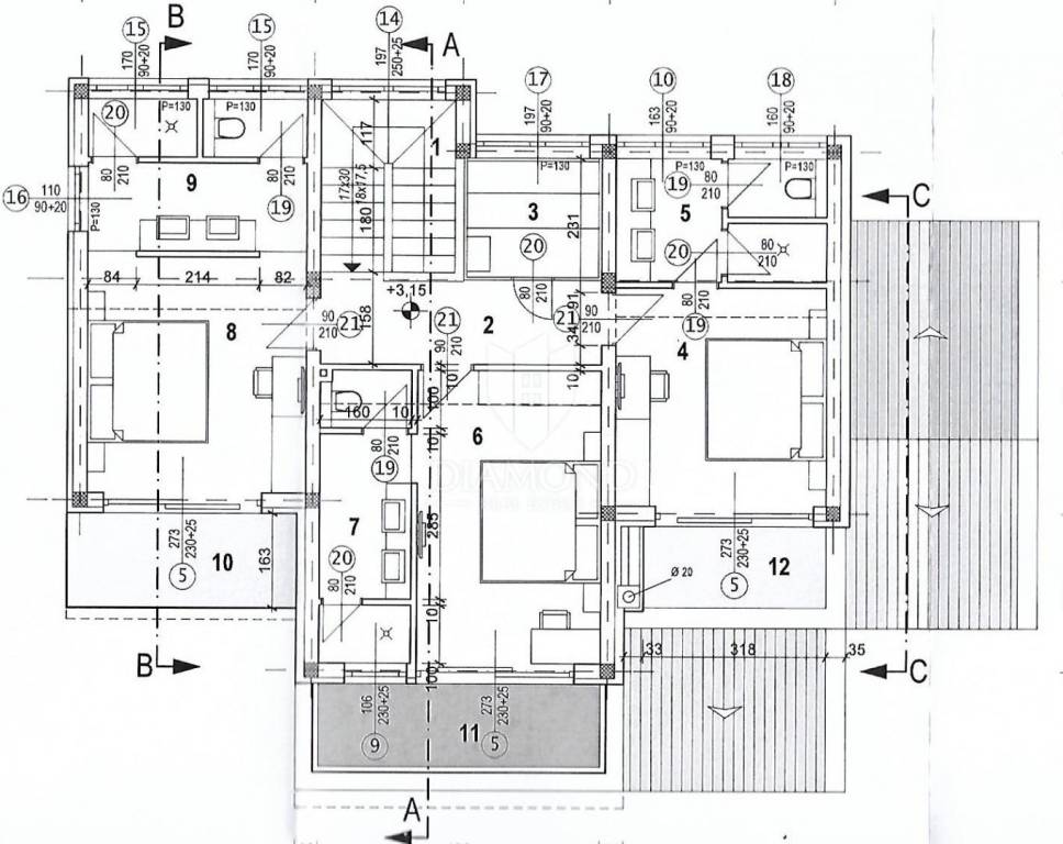
Grundriss
Entdecken Sie jeden Winkel des Anwesens
+3
Zusätzliche Optionen

Inserenten kontaktieren

Oder