Bauland zur Verkauf

€ 150.000
1.295 m²

Notiz

Anzeige aktualisiert am: 23.01.2026
Beschreibung

This description has been translated automatically and may not be accurate

Referenz: 1037-359

Landen Sie mit einem Projekt 5 Minuten vom Meer entfernt!

Istrien, Barban, Umgebung

Dieses Grundstück liegt in einer schönen kleinen Siedlung nicht weit vom Meer entfernt. Es liegt am Ende einer ruhigen Straße. Alle notwendigen Annehmlichkeiten sind nur wenige Minuten entfernt und die ersten Strände sind 5 Autominuten von der Unterkunft entfernt.

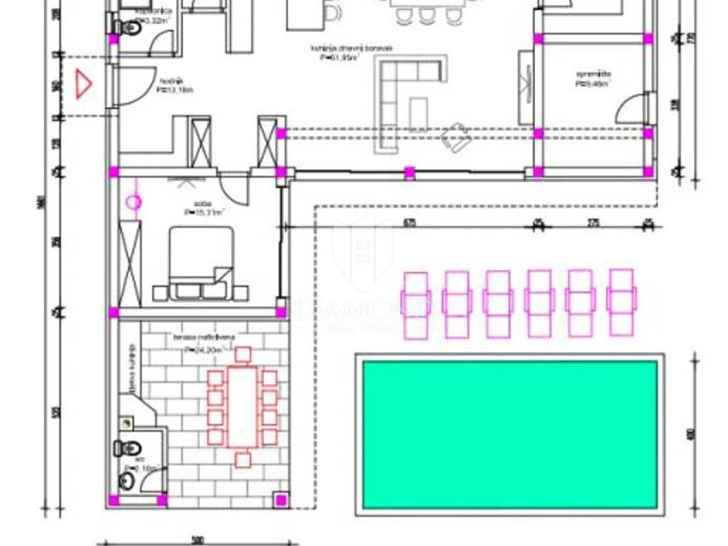
Das Grundstück wird mit einem Projekt für ein Haus mit Schwimmbad verkauft. Das Haus verfügt über ein modernes Design und erstreckt sich über zwei Etagen. Es verfügt über insgesamt 4 Schlafzimmer und eine große Terrasse von 65m2 im ersten Stock. Ein Antrag auf Baugenehmigung wurde eingereicht, die notwendige Infrastruktur befindet sich nur wenige Meter vom Grundstück entfernt. Die Gesamtgröße des Grundstücks beträgt 1300m2.

Dieses Land ist eine echte Chance für jeden, der Land in der Nähe des Meeres sucht. Ein großer Vorteil ist auch ein Projekt, das den Prozess vereinfacht und beschleunigt. Tolle Gelegenheit für alle, die bereit sind zu bauen.

ID CODE: 1037-359
Merkmale
Vertrag
Verkauf
Art
Bauland
Fläche
1.295 m²
Preisinformationen
Preis
€ 150.000
Preis pro m²
116 €/m²
Entdecken Sie jeden Winkel des Anwesens
+10
Zusätzliche Optionen

Inserenten kontaktieren

Oder