Dreizimmerwohnung Novi Vinodolski, Novi Vinodolski

€ 223.320
3
63 m²
1
1
Nein

Notiz

Anzeige aktualisiert am: 30.01.2026
Beschreibung

This description has been translated automatically and may not be accurate

Referenz: 4337

Wohnung Novi Vinodolski, 1m2

In hervorragender Lage in Novi Vinodolski verkaufen wir eine Wohnung in einem neuen Gebäude, dessen Fertigstellung für die Saison 2025 erwartet wird. Das Gebäude liegt nur 270 m Luftlinie vom Meer entfernt.
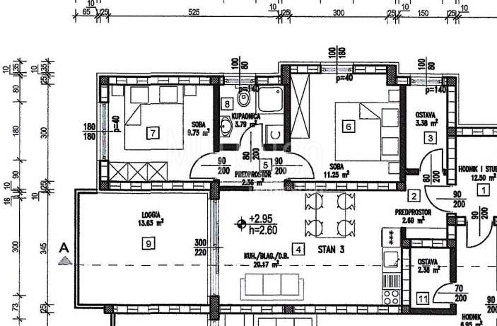
Die Wohnung besteht aus Flur, Badezimmer, Speisekammer, zwei Schlafzimmern und einem Wohnzimmer mit Küche und Ausgang auf eine geräumige Loggia.
Zur Wohnung gehört ein Parkplatz.
Hochwertige Konstruktion und Materialien, bewährter Investor.
Die Wohnung unterliegt dem Mehrwertsteuersystem und Sie können mit einer Rendite von der Hälfte des Betrags rechnen!
Der Preis ist in dieser Phase nicht festgelegt, aber er sollte zum Preis eines Parkplatzes (mit einem Koeffizienten von 0,25) und des Gartens für die Erdgeschosswohnungen hinzugerechnet werden.
Verpassen Sie nicht diese großartige Gelegenheit, ein Wohnungsproblem zu lösen und eine hervorragende Investition zum Zweck der touristischen Vermietung zu tätigen!
Zu Beginn klären wir die Zustimmung zur touristischen Vermietung!

Rufen Sie den Makler an, stellen Sie alle möglichen Fragen :), vereinbaren Sie eine Besichtigung und verpassen Sie diese großartige Gelegenheit nicht!

ID CODE: 4337

Molo Longo nekretnine
Mob: +385 51 858 544
Tel: +385 51 858 544
E-mail: info@mololongorealestate.com
www.mololongorealestate.com
Merkmale
Art
Wohnung
Vertrag
Verkauf
Etage
1 etage
Aufzug
Nein
Fläche
63 m²
Zimmer
3
Schlafzimmer
2
Badezimmer
1
Balkon
Nein
Terrasse
Nein
Garage, parkplätze (auto)
1 parkplatz(e)
Klimaanlage
Eigenständig, kalt / warm
Preisinformationen
Preis
€ 223.320
Preis pro m²
3.545 €/m²
Energieeffizienz
  • Baujahr

    2025
  • Klimatisierung

    Eigenständig, kalt / warm
  • Energieausweis

    Nicht klassifizierbar
Entdecken Sie jeden Winkel des Anwesens
+9
Zusätzliche Optionen

Inserenten kontaktieren

Oder