Einfamilienhaus Stranići kod Lovreča, Sveti Lovreč, Sveti Lovreč

€ 436.000
5
106 m²
1
Nein

Notiz

Anzeige aktualisiert am: 30.01.2026
Beschreibung

This description has been translated automatically and may not be accurate

Referenz: 2708

Haus Stranići kod Lovreča, Sveti Lovreč, 106m2


Vrsar, eine Küstenstadt im Westen Istriens mit ausgeprägter touristischer Ausrichtung und hochwertigen Unterkunftsmöglichkeiten, ist reich an luxuriösen natürlichen Ressourcen – angenehme Strände, eine wunderschöne Küste und ein reiches Hinterland. Dies waren sicherlich die Gründe, warum sich der italienische Abenteurer, Schriftsteller und Verführer und berühmte Feinschmecker Giacomo Casanova einst an diesen Ort „verirrte“ und sich in ihn verliebte. Die Küste, an der jeder Fuß von der wahren istrischen Gastfreundschaft lebt, bietet eine Vielzahl touristischer Einrichtungen.

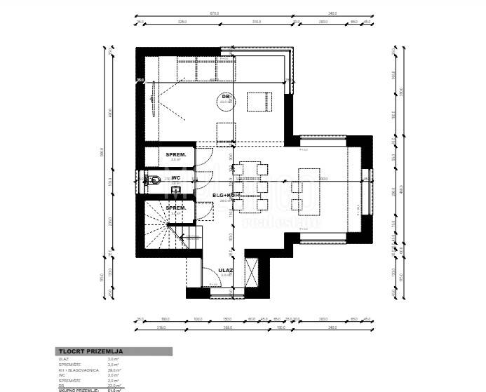
Zum Verkauf steht eine wunderschöne moderne Villa mit einer Gesamtfläche von 106 m2, gelegen in einem ruhigen Teil Istriens.
Es verfügt über drei Schlafzimmer, einen Swimmingpool und eine entspannende Terrasse mit einem wunderschönen Blick ins Grüne.
Das Haus befindet sich derzeit im Bau und die Fertigstellung der Arbeiten wird für Herbst 2024 erwartet.
Der Eigentümer ist eine juristische Person, es gibt keine Grundsteuer.

Für weitere Informationen rufen Sie einen Agenten an.

ID CODE: 2708

Mirjana Vlahović
Agent s licencom
Mob: +385 95 5161 641
Tel: +385 52 774 199
E-mail: mirjana.vlahovic@mololongorealestate.com
www.mololongorealestate.com
Merkmale
Art
Einfamilienhaus
Vertrag
Verkauf
Aufzug
Nein
Fläche
106 m²
Zimmer
5
Schlafzimmer
3
Badezimmer
1
Balkon
Nein
Terrasse
Nein
Garage, parkplätze (auto)
3 parkplatz(e)
Heizung
Unabhängige heizung, heißluft heizung
Preisinformationen
Preis
€ 436.000
Preis pro m²
4.113 €/m²
Energieeffizienz
  • Baujahr

    2023
  • Heizung

    Unabhängige heizung, heißluft heizung
  • Energieausweis

    Nicht klassifizierbar
Entdecken Sie jeden Winkel des Anwesens
+5
Zusätzliche Optionen

Inserenten kontaktieren

Oder