Wohnung neu, erste Etage, Primošten

€ 260.000
5
67 m²
1
1

Notiz

Anzeige aktualisiert am: 02.02.2026
Beschreibung

Referenz: 973-1

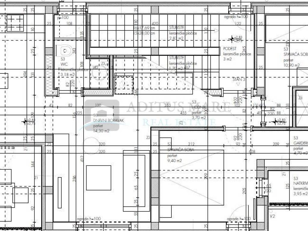
Prodaje se dvosoban stan 76,11 m2 na prvom katu s pogledom na more i grad Primošten.
Stan se sastoji od kuhinje, blagavaonice u jednoj cjelini (18,10 m2),dnevnog boravka(14,30 m2), wc-a (3,18 m2), kupaonica (3,05 m2), spavaće sobe (9,40 m2/10,90 m2), garderobe( 4,70m2) te natkrivene terase. Stanu ujedno pripada i parking mjesto.
Zahvaljujući izvrsnoj lokaciji koja Vam pruža mir u blizini se nalaze i svi sadržaji koji grad Primošten nudi, te blizina najpoznatije plaže Raduča.
Kuća modernog izgleda gradi se kvalitetnim materijalima prema posljednjem standardu gradnje: stiropor fasada, PVC GEALAN S9000 Skelin Mont stolarija, ALU protuprovalna/protupožarna ulazna vrata, alu rolete s motornim podizačima, INVERTER klima, podno grijanje u kupaonicama, LED rasvjeta.
Visokokvalitetna novogradnja, vrhunska opremljenost stambenih jedinica čine ovu nekretninu vrhunskom investicijom.
Za više informacija i razgled nekretnine slobodno nas kontaktirajte.
Marina Nikačević
099/164- 1879
INTERNI ID agencije: 973-1
Merkmale
Art
Wohnung
Vertrag
Verkauf
Etage
1 etage
Fläche
67 m²
Zimmer
5
Schlafzimmer
2
Badezimmer
1
Heizung
Zentralheizung
Klimaanlage
Zentral, kalt / warm
Preisinformationen
Preis
€ 260.000
Preis pro m²
3.881 €/m²
Energieeffizienz
  • Zustand

    Neu / Im Bau
  • Heizung

    Zentralheizung
  • Klimatisierung

    Zentral, kalt / warm
  • Energieausweis

    Nicht klassifizierbar
Entdecken Sie jeden Winkel des Anwesens
+2
Zusätzliche Optionen

Inserenten kontaktieren

Oder