1/19


Dreizimmerwohnung neu, zweite Etage, Primošten
€ 590.000
Anzeige aktualisiert am: 10.03.2026
Beschreibung
Referenz: DA100066823
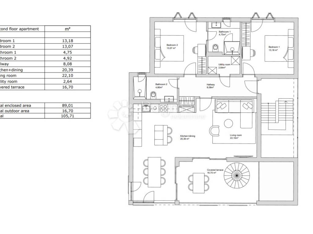
Wohnung Primošten, 97,10m2
ID CODE: DA100066823
Ante Goleš
Agent s licencom
Mob: 099/222-3054
Tel: 022/646-360, 022/646-361
E-mail: ante.goles@dogma-nekretnine.com
www.dogma-dalmacija.com
Merkmale
- Art
- Wohnung
- Vertrag
- Verkauf
- Etage
- 2 etage
- Fläche
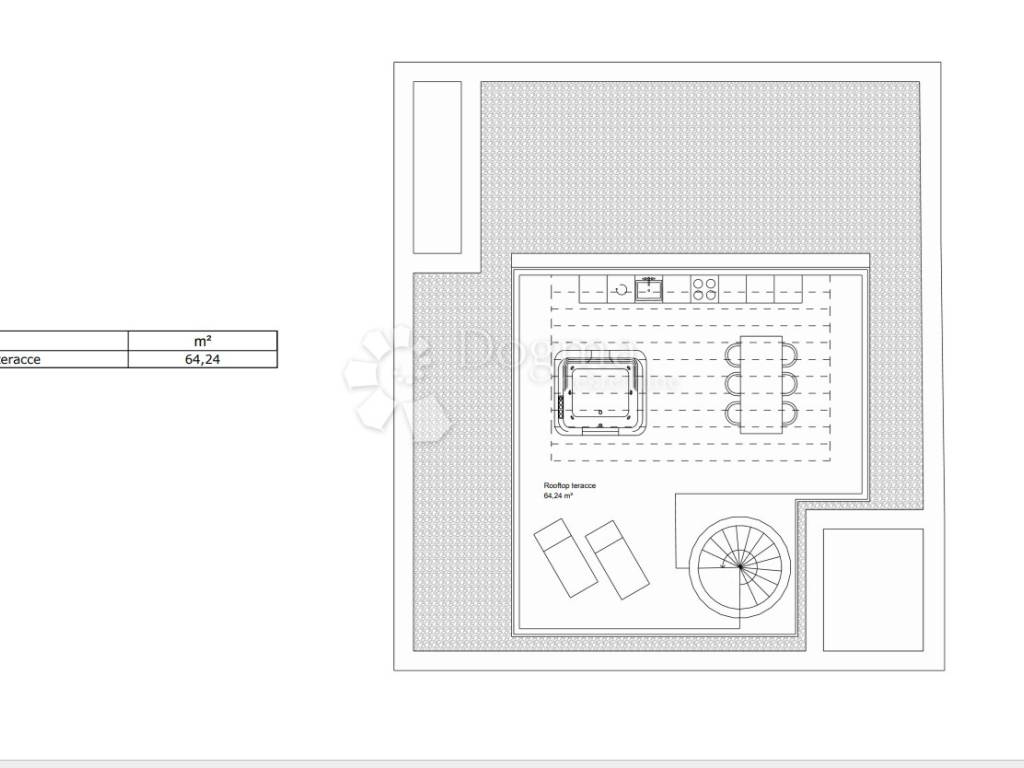
- 117 m²
- Zimmer
- 3
- Schlafzimmer
- 2
- Balkon
- Nein
- Terrasse
- Ja
Preisinformationen
- Preis
- € 590.000
- Preis pro m²
- 5.043 €/m²
Energieeffizienz
Entdecken Sie jeden Winkel des Anwesens
Zusätzliche Optionen