Einfamilienhaus 117 m², neu, Malinska

€ 580.000
3
117 m²
2

Notiz

Anzeige aktualisiert am: 01.05.2026
Beschreibung

This description has been translated automatically and may not be accurate

Referenz: k1055

Air conditioning, Anti-burglary door, Building permit, City water supply system, Garden, High-quality construction, Large terrace, Location permit, Maintained garden, New building, Newly furnished, Paid electricity supply connections, Paid utility contributions, Paid water supply connections, Phone, Project documentation, PVC joinery, Satellite TV, Sea view, Semi-detached building, Several parking spaces, Situated in a peaceful part of the island, Swimming pool, Title deed, Underfloor heating.

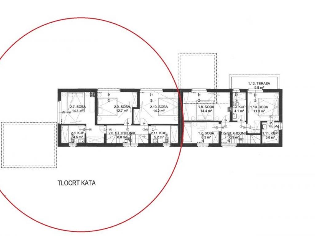
The house consists of two floors, with a total closed living space of 117,90 m2. On the ground floor there is a living room with access to a spacious terrace of 4,80 m2, with a sundeck and a swimming pool, a kitchen with a dining area, a hallway, a toilet and a staircase leading to the first floor where there is a hallway, three bedrooms and two bathrooms. There is a 22.8 m2 swimming pool with a 10 m2 machine room on the landscaped garden of 301 m2.

High quality of construction and equipment, quality floor coverings, PVC carpentry with mosquito nets and electric blinds, air conditioning, electric underfloor heating, quality sanitary facilities, burglar-proof doors, two parking spaces. The house is sold fully completed on a turnkey basis, and the expected completion of the works is 01.06.2024.

Excellent and quiet location on the edge of the construction zone, 1500 m from the sea and the center of Malinska.

Open sea view!

Only in our offer!
Merkmale
Art
Einfamilienhaus
Vertrag
Verkauf
Stockwerke im Gebäude
2
Fläche
117 m²
Zimmer
3
Schlafzimmer
3
Badezimmer
2
Möbliert
Nein
Garage, parkplätze (auto)
2 parkplatz(e)
Klimaanlage
Kalt / warm
Andere Merkmale
  • Pool
  • Gepanzerte Tür
Preisinformationen
Preis
€ 580.000
Preis pro m²
4.957 €/m²
Energieeffizienz

Energieverbrauch

A

Entdecken Sie jeden Winkel des Anwesens
+7
Zusätzliche Optionen

Inserenten kontaktieren

Oder