Zweizimmerwohnung Poreč, Luka, Parenzo

€ 302.000
2
77 m²
1
1
Nein
Balkon

Notiz

Anzeige aktualisiert am: 13.03.2026
Beschreibung

This description has been translated automatically and may not be accurate

Referenz: 1032-270

Poreč, neue Wohnung in der Nähe aller Annehmlichkeiten

ISTRIEN, POREČ, WOHNUNG IN BELIEBTER LAGE, NAEHE ZENTRUM

In einer der begehrtesten Gegenden von Poreč, in exzellenter und praktischer Lage nahe aller wichtigen Annehmlichkeiten, steht eine Wohnung zum Verkauf, die Komfort und Funktionalität ideal vereint.

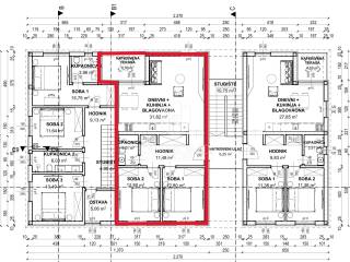
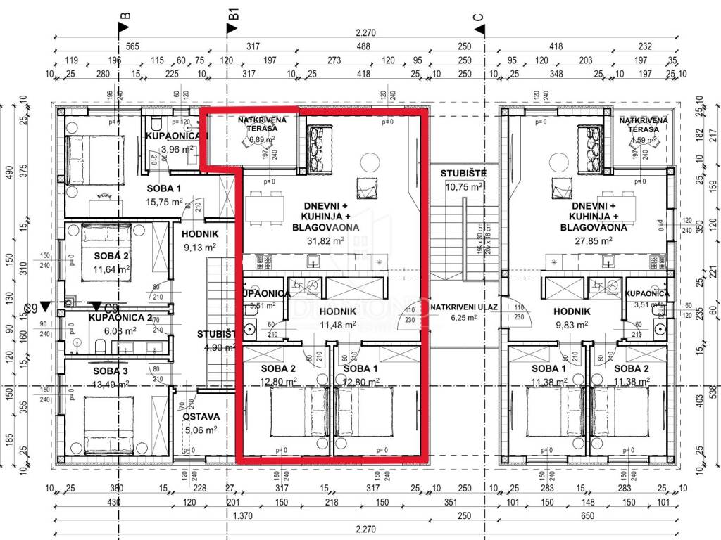
Die Wohnung verfügt über eine Wohnfläche von 77,5 m² und einen zusätzlichen Mehrwert in Form eines 40 m² großen Privatgartens – eine echte Rarität in dieser Lage. Der Außenbereich bietet die Möglichkeit, eine Terrasse, einen Garten oder einen Bereich zum Entspannen und geselligen Beisammensein einzurichten.

Die Wohnung ist funktional gestaltet und für einen angenehmen Aufenthalt das ganze Jahr über geeignet. Sie bietet einen komfortablen Wohnbereich mit angrenzender Küche und Essbereich, zwei Schlafzimmer und ein Badezimmer mit ausreichend Platz für die Bedürfnisse der Familie oder von Gästen.

In unmittelbarer Nähe befinden sich Strände, Geschäfte, Restaurants, Sportanlagen und alles, was man für einen abwechslungsreichen Alltag oder einen unbeschwerten Urlaub benötigt.

Dank seiner attraktiven Lage und des privaten Gartens ist diese Immobilie eine hervorragende Wahl für Familien in der Stadt, aber auch eine lohnende Investition mit Potenzial für touristische oder langfristige Vermietung.

Kontaktieren Sie uns für weitere Informationen und zur Vereinbarung eines Besichtigungstermins – Wohnungen mit Garten in solch einer Lage sind selten auf dem Markt.

ID CODE: 1032-270
Merkmale
Art
Wohnung
Vertrag
Verkauf
Etage
1 etage
Stockwerke im Gebäude
1
Aufzug
Nein
Fläche
77 m²
Zimmer
2
Schlafzimmer
2
Badezimmer
1
Balkon
Ja
Terrasse
Nein
Preisinformationen
Preis
€ 302.000
Preis pro m²
3.922 €/m²
Energieeffizienz
  • Energieausweis

    Nicht klassifizierbar
Entdecken Sie jeden Winkel des Anwesens
+3
Zusätzliche Optionen

Inserenten kontaktieren

Oder