Büro zur Miete

€ 1.950/Monat
117 m²
4

Notiz

Anzeige aktualisiert am: 20.02.2026
Beschreibung

Referenz: EK-2661317

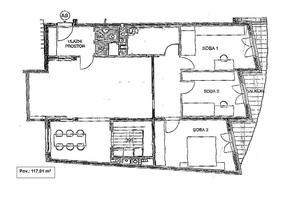
Iznajmljuje se stan / poslovni prostor površine 117 m² sa spremištem u podrumu te dva garažna parkirna mjesta, na izvrsnoj lokaciji u neposrednoj blizini Doma sportova.

4. kat od ukupno 5 katova

Poslovni prostor uključuje: open space prostor od 43,50 m² s ugrađenim pultom/šankom koji može služiti kao recepcija ili prijem (prostor je moguće dodatno urediti i pregraditi prema željama i potrebama zakupoprimca), odvojena prostorija predviđena za kuhinju, 3 zasebne prostorije površina 12 m², 13 m² i 14 m² – svaka s vlastitim balkonom, kupaonica s kadom i wc-om, dodatni wc, te prostorija koja može služiti kao arhiva.

Prostor je kompletno renoviran: novolakirani parketi, lakirana unutarnja stolarija i prozori, te svježe okrečeni zidovi.
Nenamješten je i spreman za uređenje prema potrebama zakupoprimca.

Idealan za uredske djelatnosti, odvjetnički ili javnobilježnički ured, konzultantske usluge, edukacijske centre i druge profesionalne djelatnosti.
Prostor se izdaje u zakup na minimalno 2 godine.

Za sve informacije molimo kontaktirati:

Futura Premium Estate d.o.o.
www.futura-premium.hr
M: +385 98 800 008 - licencirani agent za posredovanje u prometu nekretnina (upisan u registar HGK)
E: robert@futura-premium.hr

Agencijska provizija naplaćuje se sukladno cjeniku i Općim uvjetima poslovanja posrednika.
Karta
Wenn Sie mehr wissen möchten, können Sie mit Futura Premium. sprechen
Merkmale
Vertrag
Miete
Art
Büro
Fläche
117 m²
Etage
Stockwerke im Gebäude
5
Oberflächendetail

Büro oder Studio

Etage
4
Fläche
117,0 m²
Koeffizient
100%
Flächenart
Hauptsächlich
Verkaufsfläche
117,0 m²
Preisinformationen
Preis
€ 1.950/Monat
Preis pro m²
17 €/m²
Kostendetails
Kaution
Nicht angegeben
Energieeffizienz

Energieverbrauch

≥ 250 kWh/m² JahrB

Grundriss
Tlocrt
Entdecken Sie jeden Winkel des Anwesens
+18
Zusätzliche Optionen

Inserenten kontaktieren

Oder