map icon

Zweizimmerwohnung 109 m², Okrug

Okrug
€ 471.500
2
109 m²
2

Notiz

Anzeige aktualisiert am: 19.02.2026
Beschreibung

This description has been translated automatically and may not be accurate

Referenz: 2035/104

Apartments mit Swimmingpool in einem neuen Gebäude

Zum Verkauf stehen moderne Apartments mit Meerblick auf der Insel Čiovo.

Sie liegen nur 10 Gehminuten vom Stadtzentrum und allen Einrichtungen der Insel entfernt, die sie zu einem attraktiven Ort machen. Die Wohnungen haben eine westliche Ausrichtung und befinden sich in einem Wohnhaus mit insgesamt 3 Etagen.

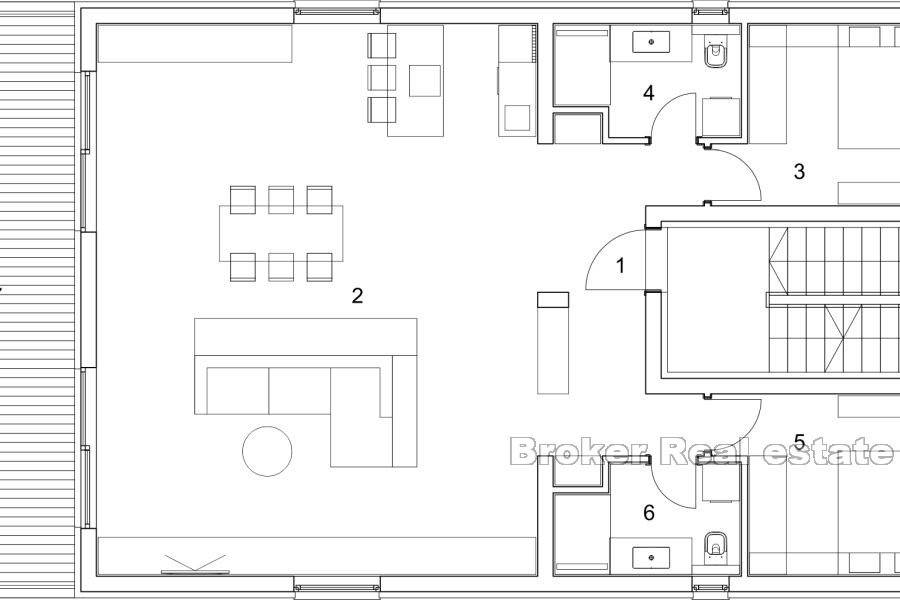
Auf jeder Etage befindet sich ein Apartment mit zwei Schlafzimmern, zwei Badezimmern und einer großzügigen Terrasse oder einem Balkon. Die Wohnung im Erdgeschoss verfügt über einen Pool und einen Garten, während die Wohnung im Dachgeschoss Zugang zu einer Dachterrasse hat, die nach Wunsch ausgestattet werden kann.

Hinter dem Gebäude wird es Außenparkplätze geben, von denen je zwei Stellplätze zu jeder Wohnung gehören.

Der Investor bietet außerdem die Möglichkeit, die Wohnungen auf allen Etagen in zwei Einraum-Spiegelwohnungen aufzuteilen.

In diesem Fall teilen sich die Erdgeschosswohnungen einen Pool und den Garten, während sich die Penthousewohnungen eine Dachterrasse teilen.

Beim Bau werden hochwertige Materialien verwendet und die Heizung und Kühlung erfolgt über drei Klimaanlagen in jeder Wohnung.

Aufgrund der Nähe zu allen Annehmlichkeiten und dem nur 10 km entfernten Flughafen sind die Apartments eine ausgezeichnete Wahl.

Option 1:

ERDGESCHOSS

S1 109,46 m + Terrasse 22,36 m + Garten mit Pool 355,79 m 422.422 VERKAUFT!

ERSTER STOCK:

S2 109,46 m + Terrasse 22,36 m 368.000 VERKAUFT!

ZWEITER STOCK:

S3 109,46 m + Terrasse 22,36 m + Dachterrasse 142,67 m 471.500

Option 2:

ERDGESCHOSS:

S1a 53,70 m + Terrasse 11,18 m + Garten mit Pool 251,28 m 253.900 VERKAUFT!



S1b 53,70 m + Terrasse 11,18 m + Garten mit Pool 251,28 m 253.900 VERKAUFT!

ERSTER STOCK:

S2a 53,70 m + Terrasse 11,18 m 181.000 VERKAUFT!



S2b 53,70 m + Terrasse 11,18 m 181.000 VERKAUFT!

ZWEITER STOCK:

S3a 53,70 m + Terrasse 11,18 m + Dachterrasse 69,05 m 231.000 VERKAUFT!

S3b 53,70 m + Terrasse 11,18 m + Dachterrasse 69,05 m 231.000 VERKAUFT!

Merkmale
Art
Wohnung | Luxusimmobilienklasse
Vertrag
Verkauf
Fläche
109 m²
Zimmer
2
Badezimmer
2
Andere Merkmale
  • Pool
Preisinformationen
Preis
€ 471.500
Preis pro m²
4.326 €/m²
Energieeffizienz
  • Energieausweis

    Befreit
Entdecken Sie jeden Winkel des Anwesens
+18
Zusätzliche Optionen

Inserenten kontaktieren

Oder