Zweizimmerwohnung Okrug Gornji, Okrug

€ 250.000
2
65 m²
1
Balkon

Notiz

Anzeige aktualisiert am: 03.03.2026
Beschreibung

Referenz: EUROVILLA-293139

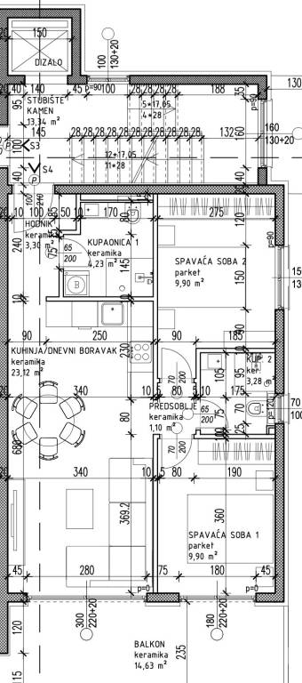
Čiovo, Okrug Gornji, dvosoban stan položen na prvoj etaži modernog objekta s bazenom i liftom, u izgradnji.Stan S4 se sastoji od ulaznog hodnika, dvije spavaće sobe, dvije kupaonice, kuhinje s blagovaonicom i dnevnog boravka s izlazom na natkriveni balkon površine 14, 63 m2. Površina zatvorenog stambenog dijela iznosi 55 m2, a ukupna 65 m2.U cijenu je uračunato jedno vanjsko nenatkriveno parkirno mjesto.Objekt je smještan na južnoj strani Čiova, na odličnoj lokaciji, jako blizu uređenih plaža, restorana, trgovina,….Za sva ostala pitanja, stojim na raspolaganju.... Više na eurovilla.hr, ID: 293139
Wenn Sie mehr wissen möchten, können Sie mit Josipa Serdarušić. sprechen
Merkmale
Art
Wohnung
Vertrag
Verkauf
Etage
1
Fläche
65 m²
Zimmer
2
Schlafzimmer
2
Balkon
Ja
Oberflächendetail

Wohnung

Etage
1
Fläche
65,0 m²
Koeffizient
100%
Flächenart
Hauptsächlich
Verkaufsfläche
65,0 m²
Preisinformationen
Preis
€ 250.000
Preis pro m²
3.846 €/m²
Energieeffizienz
  • Zustand

    Neu / Im Bau
  • Energieausweis

    Befreit
Grundriss
Entdecken Sie jeden Winkel des Anwesens
+13
Zusätzliche Optionen

Inserenten kontaktieren

Oder