Dreizimmerwohnung Rovanjska, Jasenice, Jasenice

€ 225.000
3
81 m²
1
0
Nein
Terrasse

Notiz

Anzeige aktualisiert am: 08.04.2026
Beschreibung

This description has been translated automatically and may not be accurate

Referenz: A-3373-S

Apartment Rovanjska, Jasenice, 65,23m2

ROVANJSKA - zum Verkauf eine schöne Zwei-Zimmer-Wohnung S2 von 81 m2 im Erdgeschoss, 500 m vom Meer entfernt!

Zum Verkauf steht ein exklusives Projekt mit 6 Luxusapartments, das eine perfekte Kombination aus mediterranem Ambiente und erstklassiger Wohnqualität darstellt.
Große Glaswände, sorgfältig gestaltete Aufteilung und großzügige Terrassen sorgen für viel Licht und ermöglichen einen herrlichen Panoramablick auf die Adria vom 1. und 2. Stock.
Die Wohnungen im Erdgeschoss bieten ein zusätzliches Maß an Exklusivität mit privaten Gärten von rund 160 m2, ideal zum Entspannen oder zur Schaffung Ihrer eigenen Outdoor-Oase.
Der Standort des Projekts bietet eine perfekte Balance zwischen Privatsphäre und hervorragender Verkehrsanbindung.
Der Strand ist nur 500 Meter entfernt, während die Stadt Zadar und der Flughafen etwa 30 Autominuten entfernt sind.
Das Projekt garantiert eine hohe Bauqualität, einen modernen Standard und den langfristigen Wert der Immobilie.

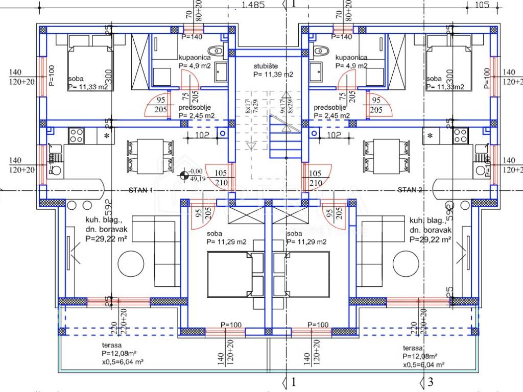
Die Wohnung S2 befindet sich im Erdgeschoss und besteht aus:
- Eingangshalle (2,45 m2)
- Badezimmer (4,9 m2)
- Raum 1 (11,33 m2)
- Raum 2 (11,29 m2)
- Küchen, mild. und Wohnzimmer (29,22 m2)
- Terrassen (12,08 m2)
Die Wohnfläche beträgt 65,23 m2.
Zur Wohnung gehört 1 Parkplatz und ein Garten (160 m2).
Die gesamte Nettofläche mit Eigentum beträgt 81,23 m2.

Folgende Wohneinheiten stehen zum Verkauf:
S1 – VERKAUFT!
S2 – Zweizimmerwohnung von 81,23 m2 im Erdgeschoss mit Garten – 225.000,00 €
S3 – VERKAUFT!
S4 – Zweizimmerwohnung von 65,23 m2 im 1. Stock – 250.000,00 €
S5 – Zweizimmerwohnung von 65,23 m2 im 2. Stock – 270.000,00 €
S6 – Zweizimmerwohnung von 65,23 m2 im 2. Stock – 270.000,00 €

Das Gebäude wird mit einer 10 cm dicken Wärmedämmung errichtet, was eine hohe Energieeffizienz gewährleistet.
Es werden hochwertige dreischichtige Tischlerarbeiten in einem modernen Anthrazitton mit elektrischen Jalousien und Moskitonetzen eingebaut.
Jede Wohnung wird mit drei Split-Klimaanlagen ausgestattet und die Badezimmer verfügen über eine Fußbodenheizung für zusätzlichen Komfort.

Rovanjska ist eine ruhige Küstenstadt am Fuße des Velebit-Gebirges, die für ihr kristallklares Meer und die entspannte mediterrane Atmosphäre bekannt ist.
Es verfügt über eine gute Verkehrsanbindung, da es in der Nähe der Autobahn liegt und nur 30 Autominuten von der Stadt Zadar entfernt ist.
Dieser kleine dalmatinische Ort ist ideal für einen ruhigen Urlaub, aber auch als Ausgangspunkt für die Erkundung von Naturschönheiten wie den Bergen und den nahegelegenen Nationalparks.
Diese Immobilie stellt eine außergewöhnliche Gelegenheit für ein luxuriöses Leben am Meer dar, ist aber auch eine attraktive Investition mit großem Potenzial für die touristische Vermietung an einem der begehrtesten Reiseziele an der Adria.

Die geplante Fertigstellung der Arbeiten und der Einzug sind für Sommer 2027 geplant.

*DER KÄUFER ZAHLT KEINE AGENTURPROVISION!

ID CODE: A-3373-S

Alma Cipurković
Mob: +385 (0)91 400 1616
Tel: +385 (0)99 284 1984
E-mail: alma@perlanekretnine.hr
www.perlanekretnine.hr

Iva Prtenjača
Mob: +385 (0)91 400 1414
Tel: +385 (0)99 284 1984
E-mail: iva@perlanekretnine.hr
www.perlanekretnine.hr
Merkmale
Art
Wohnung
Vertrag
Verkauf
Etage
Erdgeschoss
Stockwerke im Gebäude
2
Aufzug
Nein
Fläche
81 m²
Zimmer
3
Schlafzimmer
2
Badezimmer
1
Balkon
Nein
Terrasse
Ja
Garage, parkplätze (auto)
1 parkplatz(e)
Heizung
Unabhängige heizung, heißluft heizung
Klimaanlage
Eigenständig, kalt / warm
Preisinformationen
Preis
€ 225.000
Preis pro m²
2.778 €/m²
Energieeffizienz
  • Heizung

    Unabhängige heizung, heißluft heizung
  • Klimatisierung

    Eigenständig, kalt / warm
  • Energieausweis

    Nicht klassifizierbar
Entdecken Sie jeden Winkel des Anwesens
+7
Zusätzliche Optionen

Inserenten kontaktieren

Oder