Bauland zur Verkauf

€ 110.000
574 m²

Notiz

Anzeige aktualisiert am: 10.04.2026
Beschreibung

Referenz: EUROVILLA-196534

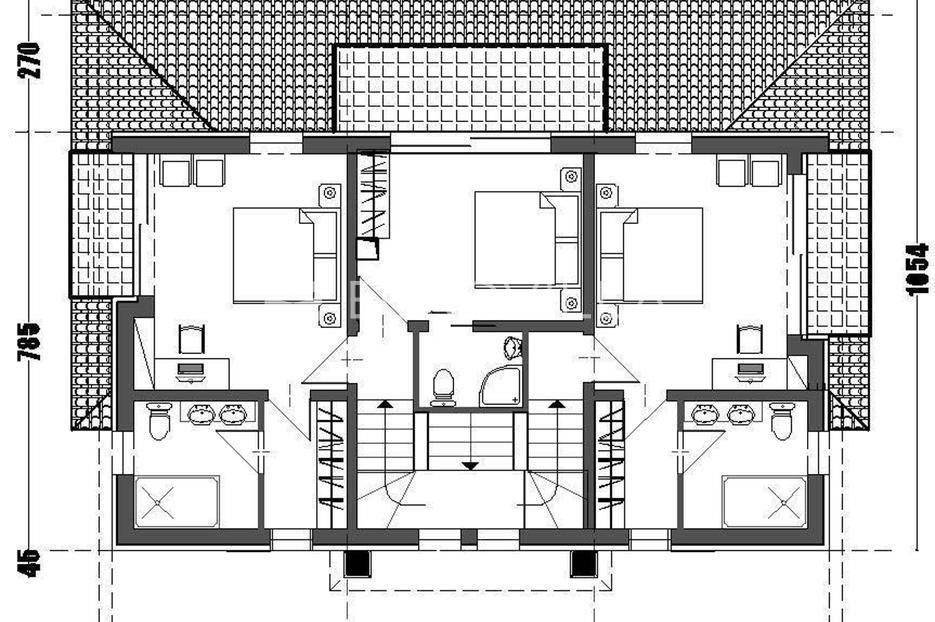
Prodaje se atraktivno zemljište na mirnoj lokaciji u zaleđu Crikvenice, u naselju Grižane-Belgrad. Idealna prilika za one koji žele preskočiti dugotrajne procese projektiranja i odmah krenuti s realizacijom svog doma ili kuće za odmor.Ključne karakteristike projekta:Površina kuće: 200 m² (moderno koncipiran prostor).Stanje na terenu: Izgrađena temeljna ploča i svi potrebni potporni zidovi.Dokumentacija: Gotov projekt i važeća dozvola – gradnja se može nastaviti odmah.Raspored prostorija prema projektu:Prizemlje: Prostrani "open space" dnevni boravak, kuhinja i blagovaonica, jedna spavaća soba kupaonica, WC te hodnik.Kat: 3 komforne spavaće sobe, svaka s vlastitom kupaonicom (en-suite koncept), što jamči maksimalnu privatnost.Projekt dopušta nastavak klasične gradnje, ali je idealan i za postavljanje montažne kuće, što znatno ubrzava useljenje.Mirno okruženje s autohtonim šarmom, svega desetak minuta vožnje od mora i vreve Crikveničke rivijere.Javite nam se za više informacija i razgled!... Više na eurovilla.hr, ID: 196534
Wenn Sie mehr wissen möchten, können Sie mit Kristina Tomašić-Parquet. sprechen
Merkmale
Vertrag
Verkauf
Art
Bauland
Fläche
574 m²
Preisinformationen
Preis
€ 110.000
Preis pro m²
192 €/m²
Entdecken Sie jeden Winkel des Anwesens
+15
Zusätzliche Optionen

Inserenten kontaktieren

Oder
agent male

Kristina Tomašić-Parquet