Einfamilienhaus 156 m², neu, Malinska

€ 620.000
4
156 m²
3+
Terrasse

Notiz

Anzeige aktualisiert am: 30.04.2026
Beschreibung

This description has been translated automatically and may not be accurate

Referenz: EI-5456

Neubau in Malinska - Haus mit Pool

Neubau, Doppelhaushälfte mit Pool und Garten - Malinska, Insel Krk

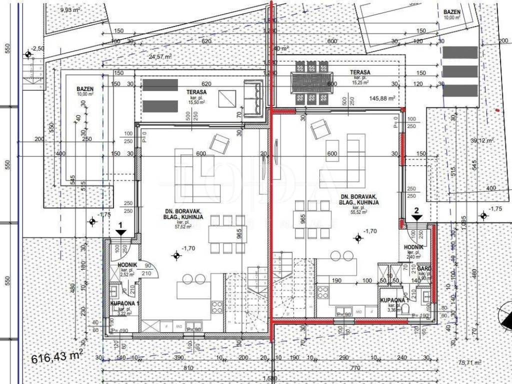
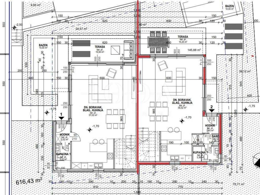
Das Haus hat eine Fläche von 156 m2 und erstreckt sich über das Erdgeschoss und den ersten Stock. Im Erdgeschoss ist die Eingangshalle, Garderobe, ein Badezimmer und ein offener Raum, der Wohnzimmer, Küche und Esszimmer vereint sowie eine überdachte Terrasse von 15 m2. Im ersten Stock ist einen Flur, eine Garderobe, drei Schlafzimmer mit jeweils eigenem Bad und zwei Balkone. Das Haus wird schlüsselfertig verkauft und verfügt über einen angelegten Garten mit Pool und zwei Parkplätzen. Hochwertige Konstruktion mit Fußbodenheizung mittels Wärmepumpensystem, PVC-Fenstern mit Fensterläden, Klimaanlage in allen Räumen.
Der Einzug ist für Sommer 2024 geplant.
Die Mehrwertsteuer ist im Preis inbegriffen!

ID CODE: EI-5456
Merkmale
Art
Einfamilienhaus
Vertrag
Verkauf
Etage
1
Fläche
156 m² | gewerblich 356 m²
Zimmer
4
Schlafzimmer
3
Badezimmer
3+
Balkon
Nein
Terrasse
Ja
Klimaanlage
Eigenständig, kalt / warm
Andere Merkmale
  • Pool
Oberflächendetail

Wohnung

Etage
1
Fläche
156,0 m²
Koeffizient
100%
Flächenart
Hauptsächlich
Verkaufsfläche
156,0 m²

Grundstück

Etage
Erdgeschoss
Fläche
200,0 m²
Koeffizient
100%
Flächenart
zusätzlich
Verkaufsfläche
200,0 m²
Preisinformationen
Preis
€ 620.000
Preis pro m²
1.742 €/m²
Energieeffizienz
  • Baujahr

    2024
  • Zustand

    Neu / Im Bau
  • Klimatisierung

    Eigenständig, kalt / warm
  • Energieausweis

    Befreit
Entdecken Sie jeden Winkel des Anwesens
+20
Zusätzliche Optionen

Inserenten kontaktieren

Oder