Einfamilienhaus 146 m², neu, Centar, Krk

€ 599.950
4
146 m²
2
Terrasse

Notiz

Anzeige aktualisiert am: 04.05.2026
Beschreibung

This description has been translated automatically and may not be accurate

Referenz: EI-3742

Krk - Villa mit Pool und Meerblick

Neubau mit Pool und Meerblick, nahe der Stadt Krk!

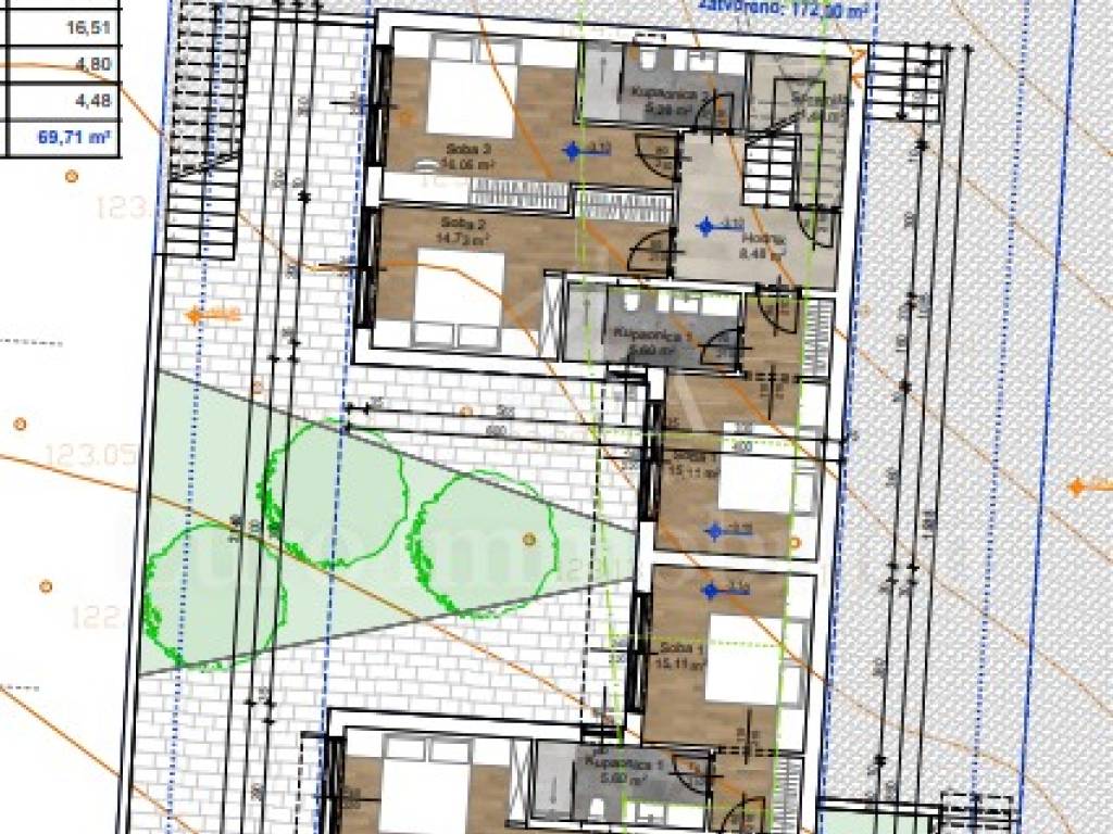
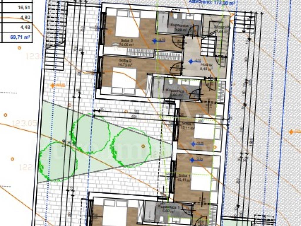
Doppelhaushälfte mit einer Gesamtfläche von 146 m2 mit ca. 250 m2 Garten. Das Haus befindet sich derzeit im Bau und wird aus drei Etagen bestehen. Das Erdgeschoss wird über drei Schlafzimmer, einen Flur und zwei Badezimmer sowie einen Abstellraum verfügen. Eine Innentreppe führt in den ersten Stock, wo sich ein geräumiges Wohnzimmer mit Küche und Essbereich, Flur und Toilette befindet. Innentreppe führt zur Dachterrasse mit Jacuzzi. Die Dachterrasse bietet einen Panoramablick auf das Meer. Der gepflegte Garten verfügt über einen privaten Pool mit Sonnendeck, Sommerküche mit Grill und zwei Parkplätze.

Modernes Projekt, hochwertige Konstruktion und Ausstattung, ruhige Lage in einer wunderschönen Nachbarschaft, umgeben von Einfamilienhäusern und Villen, ca. 1 km vom Meer entfernt.

Mehrwertsteuer im Preis enthalten, der Käufer zahlt keine Grunderwerbssteuer.

Weitere Informationen - auf Anfrage!

ID CODE: EI-3742
Merkmale
Art
Einfamilienhaus
Vertrag
Verkauf
Etage
1
Fläche
146 m² | gewerblich 396 m²
Zimmer
4
Schlafzimmer
3
Badezimmer
2
Balkon
Nein
Terrasse
Ja
Klimaanlage
Eigenständig, kalt / warm
Andere Merkmale
  • Pool
Oberflächendetail

Wohnung

Etage
1
Fläche
146,0 m²
Koeffizient
100%
Flächenart
Hauptsächlich
Verkaufsfläche
146,0 m²

Grundstück

Etage
Erdgeschoss
Fläche
250,0 m²
Koeffizient
100%
Flächenart
zusätzlich
Verkaufsfläche
250,0 m²
Preisinformationen
Preis
€ 599.950
Preis pro m²
1.515 €/m²
Energieeffizienz
  • Baujahr

    2025
  • Zustand

    Neu / Im Bau
  • Klimatisierung

    Eigenständig, kalt / warm
  • Energieausweis

    Befreit
Entdecken Sie jeden Winkel des Anwesens
+20
Zusätzliche Optionen

Inserenten kontaktieren

Oder