Einfamilienhaus 200 m², Cerovlje

€ 250.000
5
200 m²
3

Notiz

Anzeige aktualisiert am: 04.02.2026
Beschreibung

This description has been translated automatically and may not be accurate

Referenz: 39844

ISTRIEN, CEROVLJE Altes Steingebäude mit Renovierungsbeginn

ISTRIEN, CEROVLJE Steinhaus mit laufender Renovierung

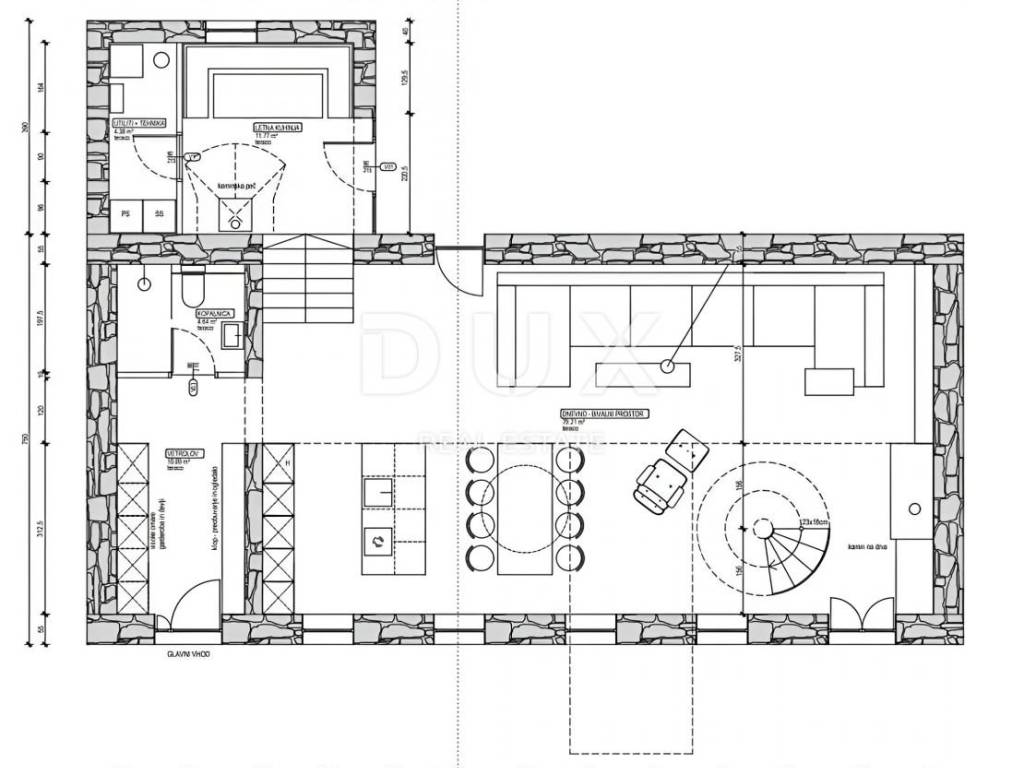
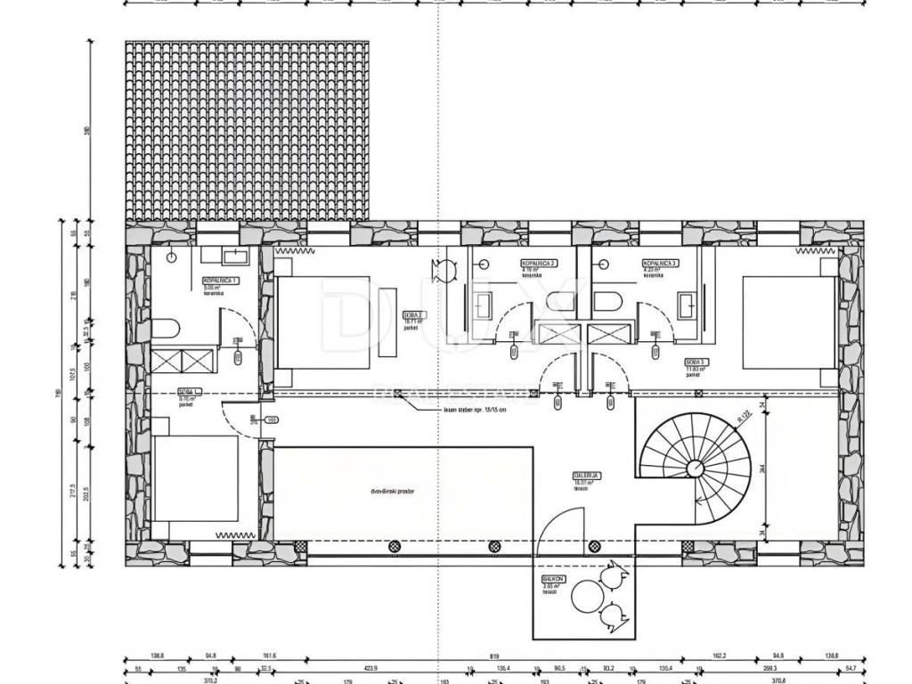
Cerovlje ist der zentrale Ort der gleichnamigen Gemeinde, die sich über die Hügellandschaft nordöstlich von Pazin erstreckt und zahlreiche Weiler und mehrere größere ländliche Siedlungen umfasst. Sie liegt 278 Meter über dem Meeresspiegel und hat eine Fläche von 4,99 km. In dieser Gemeinde befinden sich die längste Höhle Istriens, ein Olivenhain auf der höchsten Höhe und zwei Burgen. Durch die Gemeinde fließt der Fluss Pazinčica, und entlang des Flusstals verlaufen eine Eisenbahnlinie, dann eine Straße und schließlich eine Autobahn. In dieser Landschaft mit märchenhaften Ausblicken steht ein Steinhaus mit laufender Renovierung zum Verkauf. Es liegt eingebettet in Ruhe und dem Charme der Natur am Rande eines malerischen Steindorfes, das Ruhe und Tradition ausstrahlt und von dem aus sich ein Panoramablick auf die malerischen samtenen Hügel bietet. Das beeindruckende antike Gebäude aus der österreichisch-ungarischen Zeit erstreckt sich über zwei Etagen und muss renoviert werden. Die Renovierung könnte zu einer repräsentativen Immobilie mit großem Potenzial führen. Daher wurde ein Projekt entwickelt und die Baugenehmigung für den Umbau eingeholt. Das Projekt ist als perfekte Mischung aus Tradition und Moderne konzipiert und fügt sich in Form und Farbe in die Siedlung und Landschaft ein. Die Adaptierung hat begonnen; das Dach und die Betonzwischenbodenkonstruktionen wurden installiert. Der angegebene Preis bezieht sich auf den angegebenen Zustand. Die Kombination aus üppigem Grün und Architektur macht diese Immobilie ideal für Liebhaber von Steinantiquitäten und Natur und bietet großes Potenzial für ein ruhiges Familienleben oder ein profitables Vermietungsgeschäft.

Sehr geehrte Kunden, die Agenturprovision wird gemäß den Allgemeinen Geschäftsbedingungen berechnet: www.dux-nekretnine.hr/opci-uvjeti-poslovanja

ID CODE: 39844

Iva Zajc
Agent s licencom
Mob: +385 92 235 9472
Tel: +385 91 480 8808
E-mail: iva@dux-istra.com
www.dux-istra.com
Wenn Sie mehr wissen möchten, können Sie mit Iva Zajc. sprechen
Merkmale
Art
Einfamilienhaus
Vertrag
Verkauf
Etage
1
Fläche
200 m² | gewerblich 949 m²
Zimmer
5
Schlafzimmer
3
Badezimmer
3
Balkon
Nein
Terrasse
Nein
Oberflächendetail

Wohnung

Etage
1
Fläche
200,0 m²
Koeffizient
100%
Flächenart
Hauptsächlich
Verkaufsfläche
200,0 m²

Grundstück

Etage
Erdgeschoss
Fläche
749,0 m²
Koeffizient
100%
Flächenart
zusätzlich
Verkaufsfläche
749,0 m²
Preisinformationen
Preis
€ 250.000
Preis pro m²
263 €/m²
Energieeffizienz
  • Energieausweis

    Befreit
Entdecken Sie jeden Winkel des Anwesens
+5
Zusätzliche Optionen

Inserenten kontaktieren

Oder