Zweizimmerwohnung Erdgeschoss, Trsat - Krimeja, Rijeka

€ 187.000
2
58 m²
1
0

Notiz

Anzeige aktualisiert am: 15.04.2026
Beschreibung

This description has been translated automatically and may not be accurate

Referenz: 38683

RIJEKA, VOJAK - Wohnung zur Renovierung

RIJEKA, VOJAK - Wohnung zur Renovierung

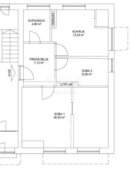
Die Wohnung befindet sich in einer großartigen Lage, umgeben von Grün, in der Nähe von öffentlichen Verkehrsmitteln, Schulen, Kindergärten, Geschäften, Parks, dem Universitätscampus auf Trsat und anderen wichtigen Annehmlichkeiten, was sie ideal sowohl zum Wohnen als auch als Investition macht. Es befindet sich im Erdgeschoss eines fünfstöckigen Gebäudes mit Ausrichtung nach Süden, Osten und Norden. Die Wohnung besteht aus Flur, Küche, Bad, zwei Schlafzimmern, von denen eines in zwei Teile unterteilt ist. Zur Wohnung gehört außerdem ein Holzschuppen. Es liegt in einem ruhigen Ortsteil mit ausreichend Parkplätzen vor dem Gebäude.

Sehr geehrte Kunden, die Agenturprovision wird gemäß den Allgemeinen Geschäftsbedingungen berechnet: www.dux-nekretnine.hr/opci-uvjeti-poslovanja

ID CODE: 38683

Arijana Traub
Agent s licencom
Mob: +385 91 267 1662
Tel: +385 91 480 8808
E-mail: arijana@dux-nekretnine.hr
www.dux-opatija.com
Wenn Sie mehr wissen möchten, können Sie mit Arijana Traub. sprechen
Merkmale
Art
Wohnung
Vertrag
Verkauf
Etage
Erdgeschoss
Fläche
58 m²
Zimmer
2
Schlafzimmer
2
Badezimmer
1
Balkon
Nein
Terrasse
Nein
Klimaanlage
Eigenständig, kalt / warm
Preisinformationen
Preis
€ 187.000
Preis pro m²
3.224 €/m²
Energieeffizienz
  • Klimatisierung

    Eigenständig, kalt / warm
  • Energieausweis

    Befreit
Entdecken Sie jeden Winkel des Anwesens
+6
Zusätzliche Optionen

Inserenten kontaktieren

Oder