map icon

Einfamilienhaus 355 m², neu, Šibenik

Šibenik
€ 980.000
5
355 m²
3+
Balkon

Notiz

Anzeige aktualisiert am: 23.12.2025
Beschreibung

This description has been translated automatically and may not be accurate

Referenz: K-8622

Luxury stone villa with swimming pool for sale, in a quiet location, 1300m from the center of Zaton.
The property is very attractive and well built and equipped.
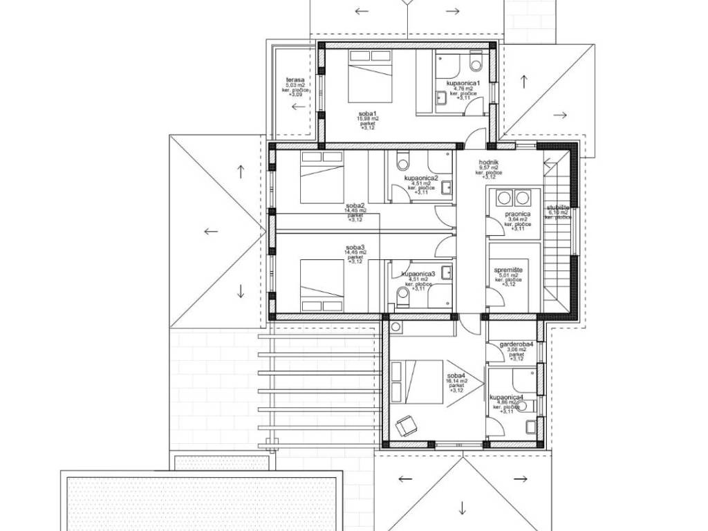
The property consists of a ground floor and a first floor, and on the ground floor there is a covered driveway and entrance, a garage with two parking spaces, a boiler room, a toilet, a kitchen with a dining room, a living room with access to a terrace with a swimming pool, and bedroom 1 with its own the bathroom.
Internal stairs lead to the first floor where there is a hallway, storage room, laundry room, bedroom 2 with bathroom and terrace, bedroom 3 with bathroom, bedroom 4 with bathroom, bedroom 5 with bathroom and wardrobe.
Other property equipment: -heat pumps – internal fireplace -underfloor heating -Fan Coil system -alarm system -video surveillance – automated pool – automated ambient lighting – automated patio door – automated irrigation system – biopurifier of waste water – preparation for the solar power plant
Merkmale
Art
Einfamilienhaus
Vertrag
Verkauf
Fläche
355 m²
Zimmer
5
Schlafzimmer
5
Badezimmer
3+
Möbliert
Nein
Balkon
Ja
Garage, parkplätze (auto)
4 parkplatz(e)
Klimaanlage
Kalt / warm
Andere Merkmale
  • Pool
Preisinformationen
Preis
€ 980.000
Preis pro m²
2.761 €/m²
Energieeffizienz
  • Baujahr

    2025
  • Zustand

    Neu / Im Bau
  • Klimatisierung

    Kalt / warm
  • Energieausweis

    Befreit
Entdecken Sie jeden Winkel des Anwesens
+4
Zusätzliche Optionen

Inserenten kontaktieren

Oder