Zweizimmerwohnung neu, Erdgeschoss, Zagreb

€ 136.560
2
34 m²
1
0
Ja

Notiz

Anzeige aktualisiert am: 29.11.2025
Beschreibung

Referenz: Resnik - Čulinečka cesta

Prodaja stana – Novogradnja, Resnik (Zagreb)

Stan S3
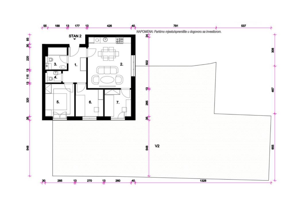
Na mirnoj i urbanoj lokaciji u naselju Resnik, u ponudi je dvosoban stan u novogradnji smješten u prizemlju moderne stambene zgrade koja se sastoji od prizemlja, prvog i drugog kata. Sveukupne neto korisne površine 34,14 m2. Sastoji se od ulaznog dijela, dnevne sobe s kuhinjom i blagovaonom, spavaće sobe, garderobe, kupaonice, lođe i pripadajućeg vrta površine 32 m2.

Stan je izuzetno funkcionalno organiziran i sastoji se od ulaznog prostora, dnevnog boravka povezanog s kuhinjom i blagovaonicom, spavaće sobe, moderne kupaonice, lođe. Prostori su osmišljeni kako bi maksimalno iskoristili prirodno svjetlo, čime se postiže ugodan i topao ugođaj doma.

U interijeru su planirani parket i keramičke pločice, što osigurava elegantan i dugotrajan podni završetak, dok grijanje putem dizalice topline pruža visoku energetsku učinkovitost i niske troškove održavanja. Uz stanje obavezna kupnja garažnog parkirnog mjesta po cijeni od 20.000,00 eura, je moguće kupiti dodatno spremište.

Naselje Resnik odlikuje se mirnim obiteljskim okruženjem, u neposrednoj blizini svih važnih sadržaja za život – škole, vrtića, trgovina i javnog prijevoza. Lokacija spaja prednosti mirnog prigradskog naselja i brzi pristup centru Zagreba, što ovaj stan čini idealnim izborom za obitelji i pojedince koji traže kvalitetan novi dom u zelenom okruženju.

Naselje Resnik također ima i izvrsnu prometnu povezanost s ostatkom Zagreba i okolice. Smješteno je na istočnom dijelu grada, u blizini Slavonske avenije i obodne prometnice, što omogućuje brz pristup centru Zagreba, kao i autocesti A3 (Zagreb–Lipovac) te obilaznici. U neposrednoj blizini nalaze se i autobusne linije koje povezuju Resnik s kvartovima Dubec, Borongaj i Kvaternikov trg, dok je željeznička postaja Zagreb-Resnik dostupna za one koji preferiraju željeznički prijevoz.

Zahvaljujući ovoj povezanosti, lokacija omogućuje brzo i jednostavno kretanje prema poslovnim zonama, školama, trgovačkim centrima i rekreacijskim područjima, što je čini izuzetno praktičnim izborom za svakodnevni život.

Kupnja od provjerenog investitora sa mnogobrojnim projektima iza sebe.

Za više informacija i dogovor oko razgledavanja stana stojimo na raspolaganju.
Maja 091 888 4643
Wenn Sie mehr wissen möchten, können Sie mit Maja Nikšić. sprechen
Merkmale
Art
Wohnung
Vertrag
Verkauf
Etage
Erdgeschoss
Stockwerke im Gebäude
2
Aufzug
Ja
Fläche
34 m²
Zimmer
2
Badezimmer
1
Andere Merkmale
  • Fensterrahmen mit Dreifachverglasung / PVC
Energieeffizienz

Energieverbrauch

≥ 250 kWh/m² JahrA

Grundriss
Entdecken Sie jeden Winkel des Anwesens
+3
Zusätzliche Optionen

Inserenten kontaktieren