2-room flat new, Privlaka

€ 219,000
2
67 m²
1
No
Balcony

Note

Listing updated on 01/14/2026
Description

reference: iro-341

Kompleks od tri manje stambene zgrade/urbane vile, Privlaka nedaleko Zadra i Nina.
Nalaze se svega 100-ak metara od mora. Svaka vila ima svoj bazen (zajednički od svih stanara) na svojoj okućnici. Stanovi u prizemlju imaju vrtove, a stanovi na zadnjem (2.) katu krovnu terasu. Svakom stanu pripada i jedno vanjsko parkirno mjesto.
Vila Astoria ima šest stambenih jedinica, a vila Estera i vila Gina imaju deset stambenih jedinica (prizemlje i dva kata).
Zgrade se nalaze u fazi grube gradnje (kraj proljeća 2024. god.), a završetak izgradnje i useljenje u zgrade je planirano za kraj 2025. god.
Zgrade se grade i uređuju vrhunskim materijalima, 1. klase; protupožarna i protuprovalna ulazna vrata u stanove, vanjska PVC stolarija antracit boje, troslojna s električnim podizačima roleta i komarnicima, klime u svim sobama (dnevni boravak i spavaće sobe), podno grijanje u kupaonicama, termo fasada debljine 10 cm (očekivani energetski razred A+) videoportafon na ulazu u zgrade.
Na podovima će se nalaziti keramika (najviše kvalitete).
Zgrade će biti spojene na gradski vodovod i imat će septičke jame s biopročišćivačem.

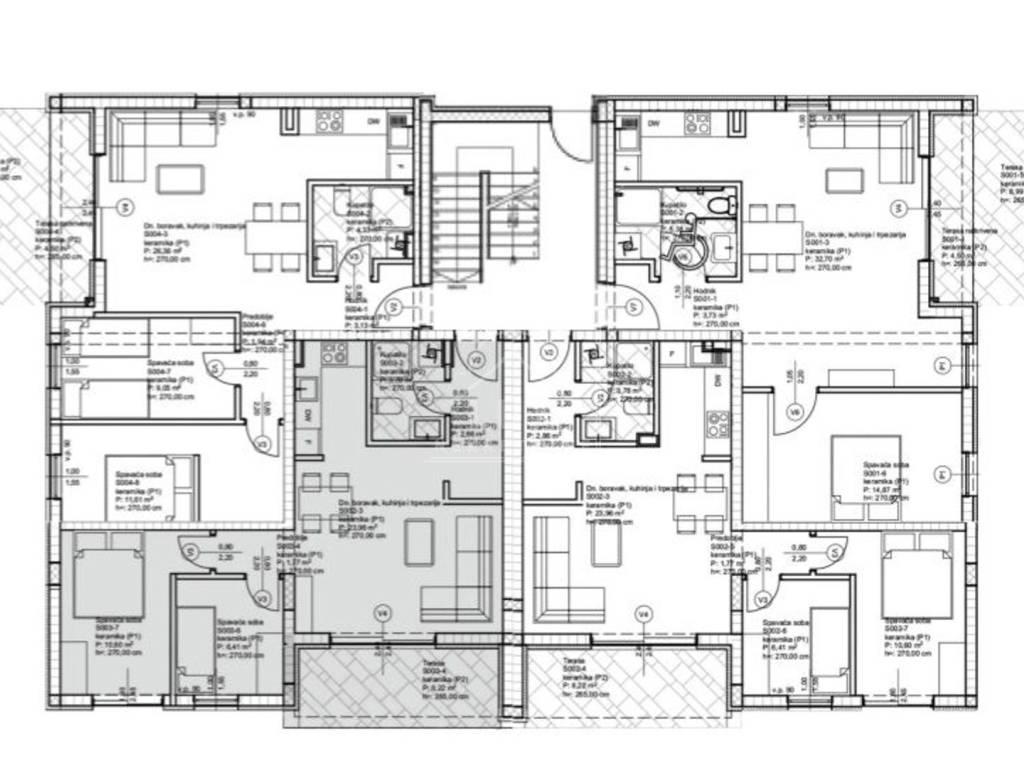
VILA GINA

Stan S3 u prizemlju, dvosoban, sadrži: hodnik, blagovaonicu s kuhinjom i dnevnim boravkom (pov. 23.96 m2), predsoblje, dvije spavaće sobe (pov. 10.61 m2 i 6.41 m2), kupaonicu (pov. 3.78 m2) i natkrivenu terasu.
Orijentacija stana je JUGOZAPAD.
Stan ima i jedno parkirno mjesto i VRT (pov. 51.87 m2).
Ukupna pov. stana sa svim pripatcima iznosi 67.39 m2.
CIJENA STANA: 219.000,00 EURA.

stan s vrtom, okolica Zadra, novogradnja, blizina mora
Features
Type
Apartment | Medium property class
Contract
Sale
Building floors
2
Lift
No
Surface
67 m²
Rooms
2
Bedrooms
2
Bathrooms
1
Balcony
Yes
Terrace
No
Heating
Independent, floor heating
Air conditioning
Independent
View
Sea
Other features
  • Pool
Price information
Price
€ 219,000
Price per m²
3,269 €/m²
Energy efficiency

Energy consumption

A+

Discover every corner of the property
+10
Additional options

Contact the advertiser

Or