2-room flat Bili brig, Zadar, Jazine - Bili brig, Zadar

€ 233,680
2
66 m²
1
2
No

Note

Listing updated on 02/25/2026
Description

This description has been translated automatically and may not be accurate

reference: 27

Zadar, Bili brig, onebedroom apartment with a seaview, 66,77 sqm

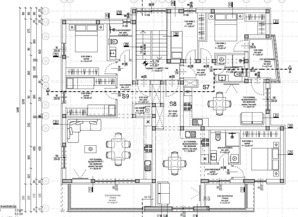
One-bedroom apartment for sale with a sea view, on the second floor of a residential building under construction. Apartment S8 has a surface area of 66.77 m² and consists of an entrance, kitchen, dining and living room, hallway, one bedroom, bathroom, a covered terrace, and a combination of covered and uncovered terrace located on the walkable roof. The apartment comes with two outdoor parking spaces and a storage unit in the basement. The building will consist of a total of nine residential units spread across the ground floor, first floor, and second floor. The construction is brick-concrete, with a 10 cm thermal facade. High-quality aluminum joinery with built-in insect screens will be used, and the apartments will feature large sliding glass doors with electric shutters. Air conditioning units will be installed in the living room and bedrooms for heating and cooling, while electric underfloor heating will be installed throughout the entire apartment. Construction work has begun, and the expected completion and move-in date is mid-2026. The building is located above the Bili brig neighborhood, close to everyday amenities.

Usable areas:
Apartment with terrace: 45.49 m²
Bedroom: 11.05 m²
Kitchen, dining, and living room: 19.98 m²
Loggia: 4.76 m²
Two parking spaces: 27.5 m²
Storage: 3.26 m²
Rooftop terrace: 54.88 m²

For more information about the project, contact us at +38591 152 7577.

ID CODE: 27

Trinova Nekretnine
Mob: +385 91 1527 577
Tel: +385 91 152 75 77
E-mail: trinovanekretnine@gmail.com
www.trinova.nekretnine1.hr
Features
Type
Apartment
Contract
Sale
Floor
2 floor
Building floors
2
Lift
No
Surface
66 m²
Rooms
2
Bedrooms
1
Bathrooms
1
Balcony
No
Terrace
No
Garage, car parking
2 parking space
Heating
Independent, air heating
Price information
Price
€ 233,680
Price per m²
3,541 €/m²
Energy efficiency
  • Heating

    Independent, air heating
  • Energy certification

    Not classifiable
Floorplan
Discover every corner of the property
+24
Additional options

Contact the advertiser

Or