3-room flat Veli vrh, Pula, Veli Vrh - Industrijska zona, Pula

€ 262,000
3
79 m²
1
Yes

Note

Listing updated on 01/22/2026
Description

This description has been translated automatically and may not be accurate

reference: ID06029

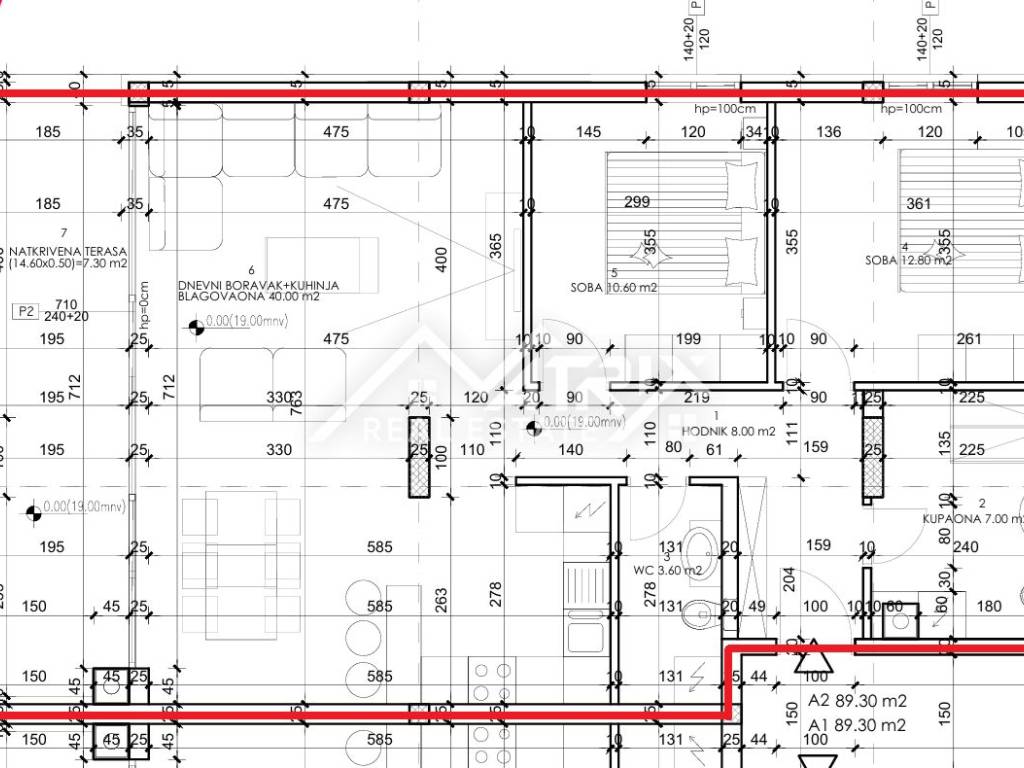
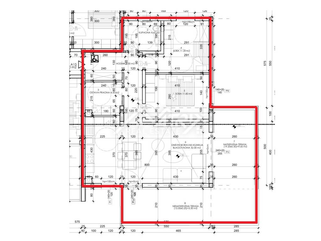
Pula, Two-Bedroom Apartments with Terrace 79–89 m²

Two-bedroom apartments for sale, sized between 79 and 89 m², located on the ground floor and first floor of a residential building with an elevator.

Each apartment includes an entrance hall, bathroom with underfloor heating, living room with kitchen and dining area, two bedrooms, and one or two covered terraces. Some units also feature an additional toilet or storage room. PVC windows are installed, and air conditioning preparation is provided.

The apartment comes with two covered parking spaces in the underground level of the building, each measuring 13.75 m² (5.5 x 2.5 m).

The building is located in Pula, in a well-connected area close to all essential amenities. The sea is just a few minutes’ drive away.

The building is under construction. Completion is expected by the end of September 2025.

ID CODE: ID06029

Ivana Mohorović
Suradnik u procesu obuke
Mob: +385 95 370 44 46
Tel: +385 52 417 779
E-mail: ivana@matrixrealestate.hr
https://matrixrealestate.hr/

Matrix Real Estate
Voditelj ureda
Mob: +385 52 417 779
Tel: +385 52 417 779
E-mail: info@matrixrealestate.hr
https://matrixrealestate.hr/
Features
Type
Apartment
Contract
Sale
Lift
Yes
Surface
79 m²
Rooms
3
Bedrooms
2
Bathrooms
1
Balcony
No
Terrace
No
Garage, car parking
2 parking space
Heating
Independent, air heating
Price information
Price
€ 262,000
Price per m²
3,316 €/m²
Energy efficiency
  • Heating

    Independent, air heating
  • Energy certification

    Not classifiable
Discover every corner of the property
+25
Additional options

Contact the advertiser

Or