Building land for Sale

€ 365,000
1,716 m²

Note

Listing updated on 01/28/2026
Description

This description has been translated automatically and may not be accurate

reference: 3849

Grebaštica, building plot 1,716m2 with sea view and 3 building permits

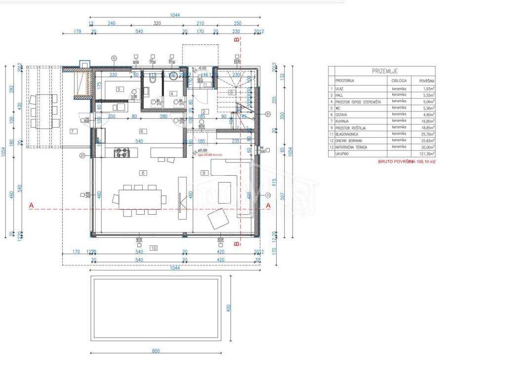
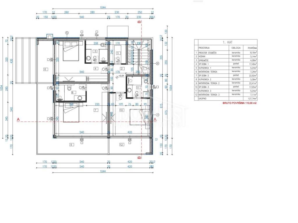
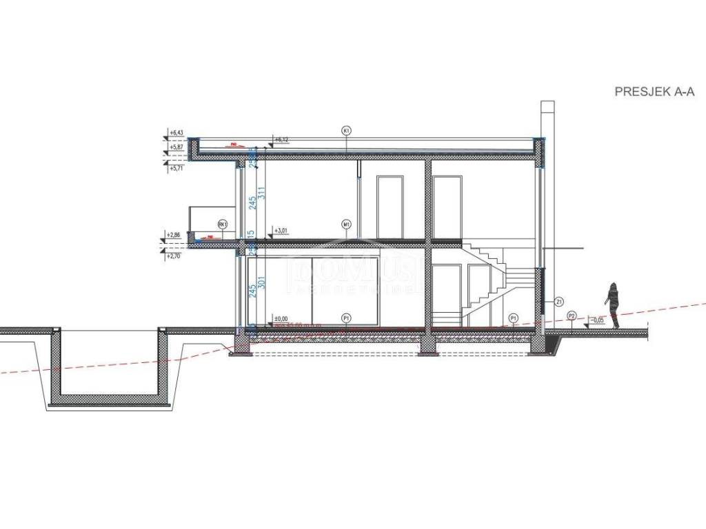
Grebaštica, quiet location, attractive building plot with sea view, surface area 1,716m2. The land has project documentation and 3 building permits for the construction of 3 detached family houses, each house on two floors P+1 with a total area of 218m2 and a swimming pool of 32m2. The land has a regular shape, with a gentle slope towards the south side. The distance from the town center and the beach is 670 m.

ID CODE: 3849

Diana Knežević
Mob: 00 385 95 289 4518
Tel: +385 22 444 620
Fax: +385 22 444 621
E-mail: knezevic@domus-nekretnine.hr
http://domus-nekretnine.hr

Katarina Marasović
Mob: 00 385 98 392 954
Tel: +385 22 444 620
Fax: +385 22 444 621
E-mail: catherine@domus-nekretnine.hr
http://domus-nekretnine.hr

Martina Silov
Mob: 00385 95 587 8860
Tel: +385 22 444 620
Fax: +385 22 444 621
E-mail: martina@domus-nekretnine.hr
http://domus-nekretnine.hr
Features
Contract
Sale
Type
Building land
Surface
1,716 m²
Price information
Price
€ 365,000
Price per m²
213 €/m²
Discover every corner of the property
+16
Additional options

Contact the advertiser

Or