3-room flat Primošten, Primošten

€ 376,000
3
70 m²
1
1
No

Note

Listing updated on 03/25/2026
Description

This description has been translated automatically and may not be accurate

reference: 165

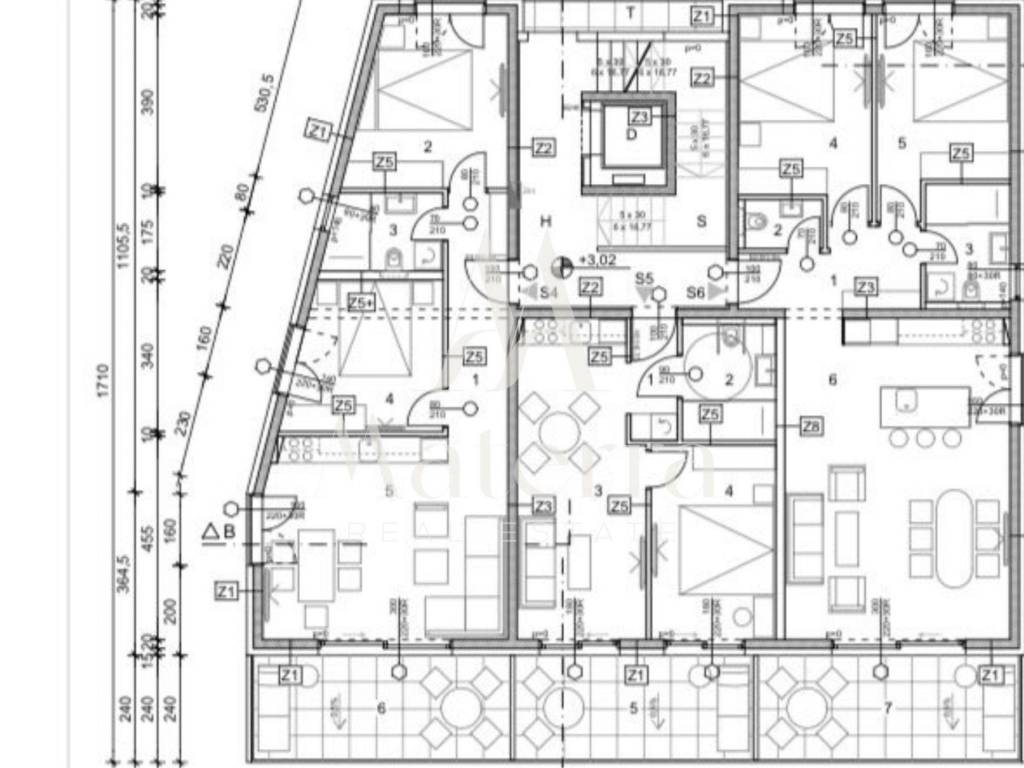
PRIMOŠTEN – NEW BUILD, 70,56 M² (S4)

Just 500 meters from the center of Primošten, a modern residential building with a total of 11 apartments is under construction. It offers top-quality construction, energy efficiency, and a modern design with a stunning view of the sea and the Primošten peninsula.

Apartment S4 is located on the first floor, with a total net area of 70.56 m² and south-facing orientation.

Apartment layout:

Entrance area – 7.36 m²

Bedroom – 12.71 m²

Bedroom – 11.09 m²

Bathroom – 4.47 m²

Living room with kitchen and dining area – 24.81 m²

Covered terrace – 13.51 m²

The total enclosed area is 70.56 m², with the terrace providing additional living space.

Building features:

Facade insulation: 15 cm rock wool

Windows: aluminum, triple-glazed, with electric shutters

Underfloor heating in bathrooms

Heating and cooling system: multi-split technology in all rooms

Elevator, security doors, video surveillance, and alarm system

High-quality ceramic tiles and flooring

Shared heated swimming pool with sun deck

Additional information:

Planned completion: March 2026

Clean ownership, investor is a legal entity

For more information and to schedule a viewing, feel free to contact us.

ID CODE: 165

Iva Kalabrić
Mob: +385995616651
E-mail: iva@materra.estate
www.materra.estate
Features
Type
Apartment
Contract
Sale
Floor
1 floor
Building floors
3
Lift
No
Surface
70 m²
Rooms
3
Bedrooms
2
Bathrooms
1
Balcony
No
Terrace
No
Garage, car parking
1 parking space
Price information
Price
€ 376,000
Price per m²
5,371 €/m²
Energy efficiency
  • Year of construction

    2025
  • Energy certification

    Not classifiable
Discover every corner of the property
+13
Additional options

Contact the advertiser

Or