1/3


Building land for Sale
€ 450,000
Listing updated on 01/22/2026
Description
reference: 1147
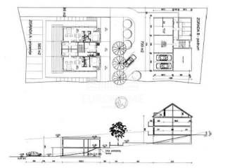
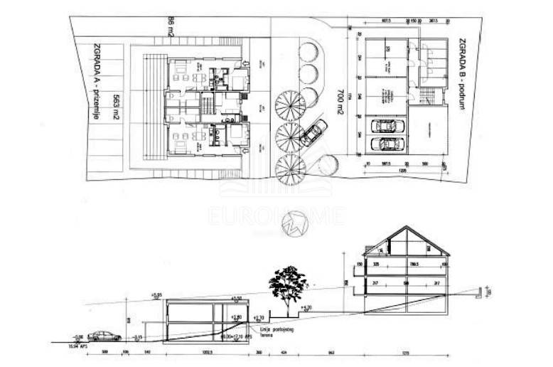
Land Vlašići, Pag, 1.350m2
ID CODE: 1147
Ivan Škrlin
Viši savjetnik
Mob: 091 9414 997
Tel: 01 6231 365
E-mail: ivan@eurohome-nekretnine.hr
www.eurohome-nekretnine.hr
Features
- Contract
- Sale
- Type
- Building land
- Surface
- 1,350 m²
Price information
- Price
- € 450,000
- Price per m²
- 333 €/m²
Additional options