Single-family detached house Poreč, Luka, Poreč

€ 270,000
3
90 m²
2
No

Note

Listing updated on 04/14/2026
Description

This description has been translated automatically and may not be accurate

reference: ALG-3645

Istria, Poreč – Renovated stone house with garden

This traditional Istrian stone house for sale is located in a peaceful and highly desirable setting just 9 kilometers from the town of Poreč and the Adriatic coast. Currently under careful reconstruction, the property combines authentic regional architecture with modern living standards, creating a warm and comfortable home suitable for year-round living, a holiday residence, or a high-quality investment.

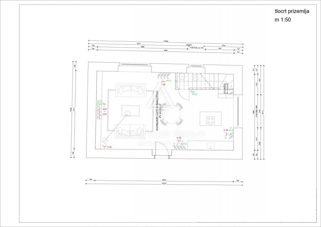
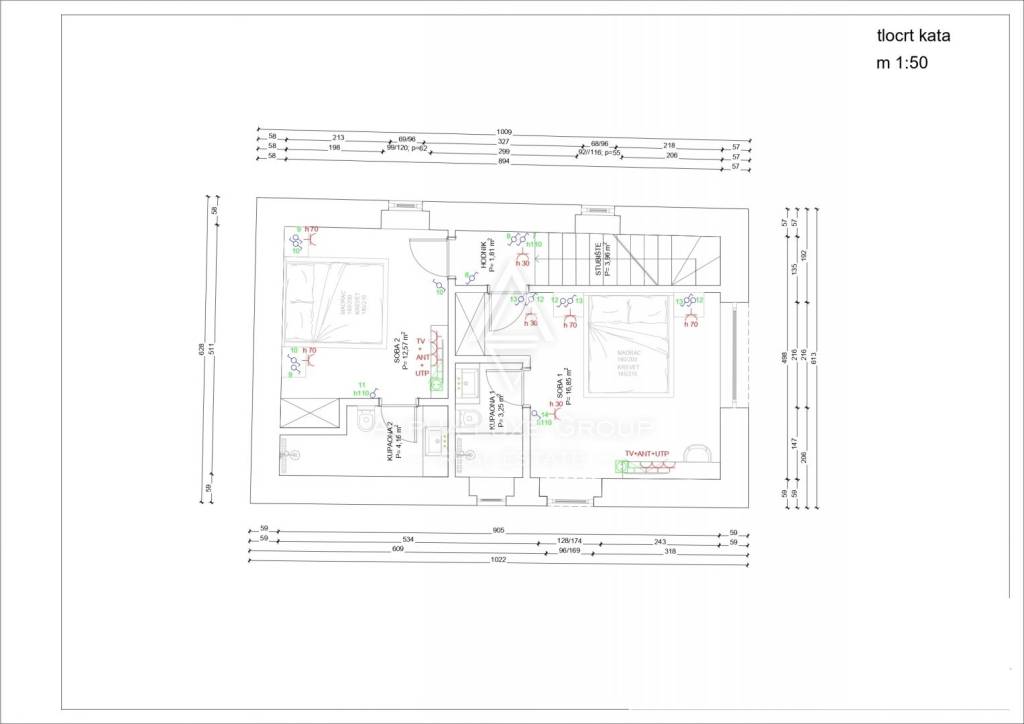
The house offers approximately 90 m² of living space and is set on a 186 m² land plot. The renovation project preserves original stone details while introducing contemporary features such as underfloor heating and air conditioning in all rooms, ensuring a pleasant indoor climate throughout the year.

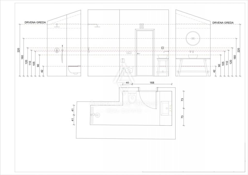
The interior layout is designed with a strong focus on functionality and privacy. Two bedrooms are planned, each with its own bathroom, while an additional guest toilet is located on the ground floor. A modern Italian-designed kitchen with quality appliances will be installed, blending refined aesthetics with everyday usability.

The landscaped garden ensures complete privacy and a welcoming outdoor atmosphere. A fireplace is planned for the exterior area, and all installations will be prepared for a jacuzzi, allowing the future owner to create a personalized relaxation space.

The property includes two private parking spaces and benefits from excellent transport connections despite its quiet surroundings. The Istrian Y motorway can be reached within minutes, while schools, public transport, and essential amenities are nearby. The completion of works is scheduled for April 1, 2026, offering a rare opportunity to purchase a fully renovated stone house with long-term value and strong investment potential.

Poreč is one of the most attractive destinations in Istria, known for its rich history, vibrant lifestyle, and stunning coastline. The surrounding area offers an ideal balance between privacy and accessibility, with quick access to beaches, restaurants, and cultural landmarks. Excellent infrastructure and proximity to major roads make this location ideal for both permanent living and luxury rental investment.

Property viewings are possible upon signing a brokerage agreement, which serves as the basis for further actions related to the purchase and sale in accordance with the Real Estate Brokerage Act. In the event of a purchase, the agency commission amounts to 3% + VAT and is payable upon signing the preliminary agreement or the purchase agreement.

Your satisfaction is our mission. We look forward to future collaboration!

https://alphaluxegroup.com

ID CODE: ALG-3645

Marijana Budimir
Agent s licencom
Mob: +385 95 363 1893
Tel: +385 52 204 933
E-mail: marijana@alphaluxegroup.com
https://alphaluxegroup.com

Robert Budimir
Agent s licencom
Mob: +385 95 363 1892
Tel: +385 52 204 933
E-mail: robert@alphaluxegroup.com
https://alphaluxegroup.com

Marino Bančić
Savjetnik za nekretnine
Mob: +385 95 363 1895
Tel: +385 52 204 933
E-mail: marino@alphaluxegroup.com
https://alphaluxegroup.com
Features
Type
Single-family detached house
Contract
Sale
Lift
No
Surface
90 m²
Rooms
3
Bedrooms
2
Bathrooms
2
Balcony
No
Terrace
No
Garage, car parking
2 parking space
Air conditioning
Independent, cold/hot
Price information
Price
€ 270,000
Price per m²
3,000 €/m²
Energy efficiency
  • Air conditioner

    Independent, cold/hot
  • Energy certification

    Not classifiable
Floorplan
Discover every corner of the property
+13
Additional options

Contact the advertiser

Or