4-room flat new, ground floor, Tar-Vabriga

€ 590,000
4
125 m²
3
G
No

Note

Listing updated on 05/03/2026
Description

This description has been translated automatically and may not be accurate

reference: I28685

ISTRIA, TAR-VABRIGA - Apartment with private pool and sea view NEWLY BUILT

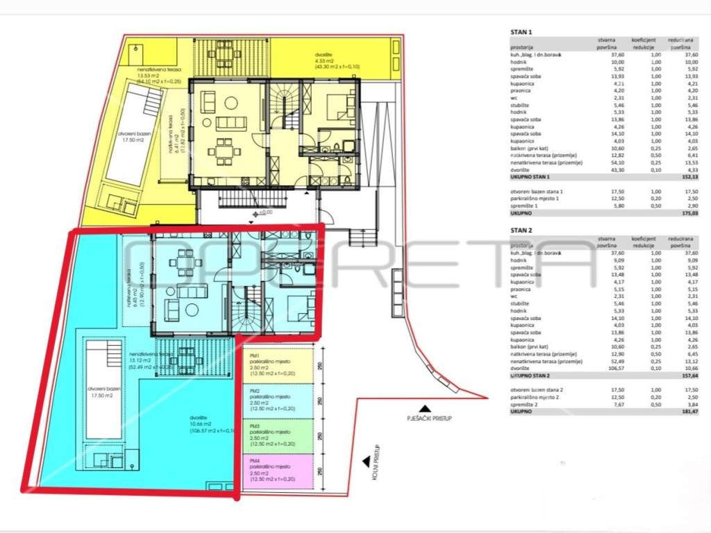
A two-story apartment S2 with a total area of 157.64m2 with a swimming pool and a beautiful view of the sea is for sale.

This beautiful and spacious apartment is spread over two floors.
On the ground floor there is an entrance hall, a storage room, a laundry room, a toilet, a room with a bathroom and a large living room and kitchen with a dining room in one unit.
The living room leads to a covered terrace of 6.45m2, an uncovered terrace of 52.49m2 and a 17.50m2 swimming pool.
The internal stairs, the tread of which is covered with solid oak wood, lead to the first floor, where there are two bedrooms. Each room has its own bathroom and access to a 10m2 terrace with a beautiful view of the sea.

The apartments are equipped with aluminum and PVC carpentry, mosquito nets and electric blinds.
In the living room, bathrooms and corridors, first-class ceramics have been installed, while the rooms will have three-layer oak parquet.
All rooms in the apartment are equipped with air conditioners with inverters and TV connections.
Electric underfloor heating is installed in all bathrooms and the living room.
The price of the apartment includes one parking space and a storage room of 5.80m2.

Real estate in the phase of obtaining a use permit

The property is included in the VAT system, the price shown is VAT included.
Features
Type
Apartment
Contract
Sale
Floor
Ground floor
Lift
No
Surface
125 m²
Rooms
4
Bedrooms
3
Bathrooms
3
Furnished
No
Garage, car parking
1 parking space
Heating
Independent, power supply
Air conditioning
Cold/hot
Other features
  • Pool
Price information
Price
€ 590,000
Price per m²
4,720 €/m²
Energy efficiency
  • Year of construction

    2024
  • Condition

    New / Under construction
  • Heating

    Independent, power supply
  • Air conditioner

    Cold/hot
Discover every corner of the property
+24
Additional options

Contact the advertiser

Or