Building land for Sale

€ 295,000
898 m²

Note

Listing updated on 02/16/2026
Description

This description has been translated automatically and may not be accurate

reference: 801

Land with building permit and paid utilities near Umag

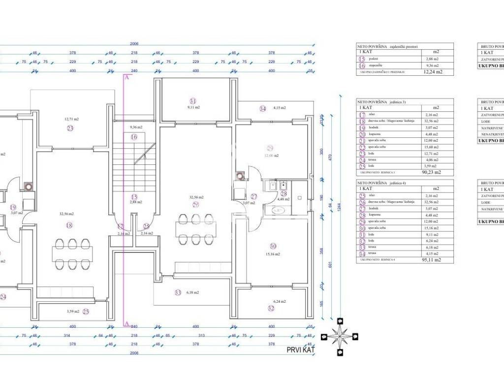
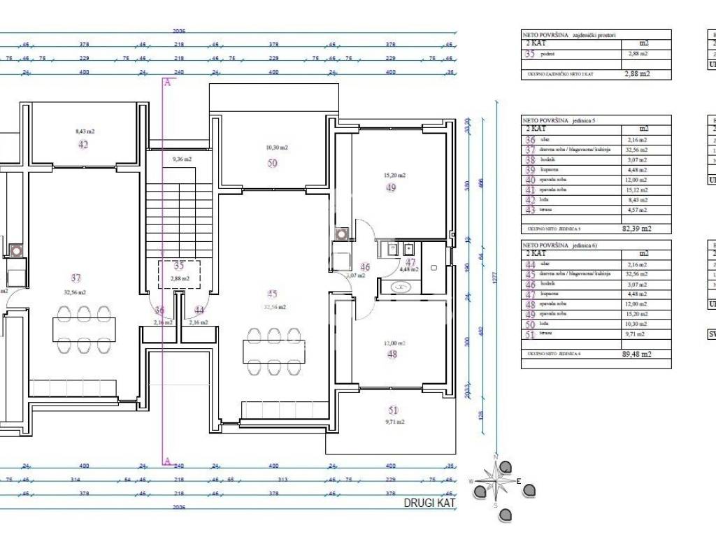
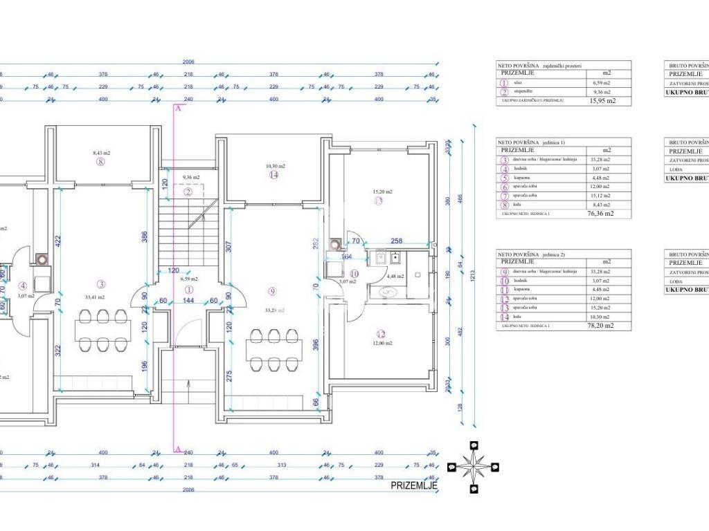
Building land for sale with paid utilities and a project near Umag. The land area is 898 m2. The project includes 6 residential units (two-bedroom apartments).

The distance of the land from the center of Umag and the sea is 2000 m.

www.leones-realestate.hr
Features
Contract
Sale
Type
Building land
Surface
898 m²
Price information
Price
€ 295,000
Price per m²
329 €/m²
Discover every corner of the property
+8
Additional options

Contact the advertiser

Or