Single family villa 207 m², Ražanac

€ 115,000
4
207 m²
2
No
Balcony
Terrace

Note

Listing updated on 02/11/2026
Description

This description has been translated automatically and may not be accurate

reference: K63

RTINA - LAND WITH BUILDING PERMIT

For sale is a building plot of 575 m2 with an issued building permit, as well as paid utility connections and communal and water contributions.

The land is located 200 m from the sea and the nearest beach.

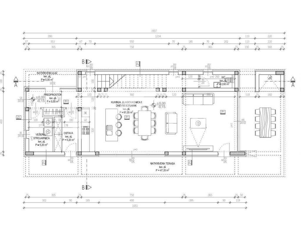
The project envisions a luxury villa on two floors – ground floor and first floor – with a total net living area of 207.91 m2. The villa is carefully designed to meet all the needs of modern living, while offering everything necessary for privacy, relaxation, and enjoyment with family and friends.

The ground floor includes a hallway, an open-plan kitchen with dining and living room, storage room, laundry room, toilet, and a large terrace, totaling 106 m2. On the first floor, with a total of 102 m2, there is a hallway, four bedrooms with two spacious bathrooms, and a large covered terrace that will have a beautiful sea view.

The outdoor area is designed for outdoor enjoyment – alongside a 28 m2 pool, there is also space for an outdoor kitchen with a fireplace, perfect for summer evenings with a barbecue.

This is a perfect opportunity for buyers looking for land in Dalmatia to build a house or villa with a sea view, either for personal use or as a secure real estate investment in an attractive location.

Rtina is located between Zadar and the island of Pag, in the immediate vicinity of the town of Ražanac. The distance to the city of Zadar and all urban amenities allows for quick connectivity, while the peaceful environment provides privacy and quality of life throughout the year.

Nearby are beaches, shops, schools, restaurants, and all necessary facilities for a comfortable stay.

Rtina is known for its crystal-clear sea, natural beaches, and preserved nature. This quiet Dalmatian place offers an authentic Mediterranean atmosphere, far from the city hustle, yet close enough to Zadar and main traffic routes.

For any additional information or to visit the property, feel free to contact us.



Emil Perović
+385 98 63 36 17
info@epic-nekretnine.com
EPIC NEKRETNINE d.o.o.
Polačišće 4, Zadar
If you want to know more, you can talk to Emil Perović.
Features
Type
Single family villa | Medium property class
Contract
Sale
Lift
No
Surface
207 m²
Rooms
4
Bedrooms
4
Bathrooms
2
Balcony
Yes
Terrace
Yes
Heating
Independent, with radiators, power supply
Air conditioning
Independent
View
Sea
Distance from the sea
200 m
Other features
  • Pool
Price information
Price
€ 115,000
Price per m²
556 €/m²
Energy efficiency
  • Heating

    Independent, with radiators, power supply
  • Air conditioner

    Independent
  • Energy certification

    Waiting for certification
Discover every corner of the property
+17
Additional options

Contact the advertiser

Or