map icon

1-bedroom flat new, Omiš

Omiš
€ 284,000
1
58 m²
1

Note

Listing updated on 02/19/2026
Description

This description has been translated automatically and may not be accurate

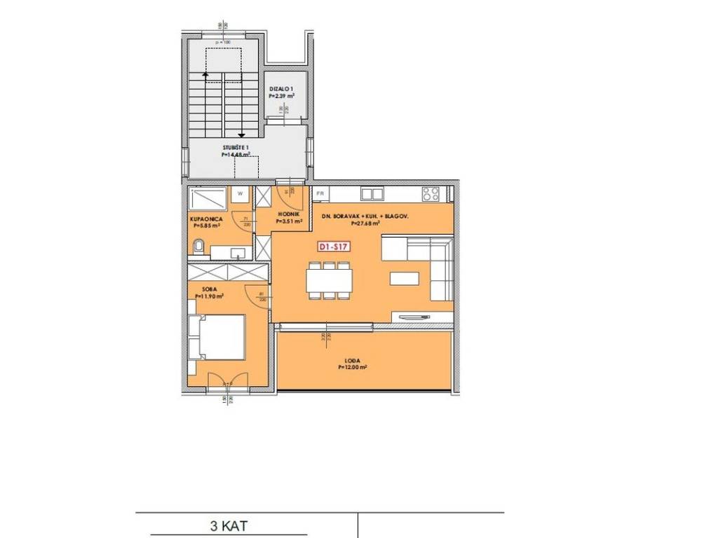
reference: 2052/93r

One-Bedroom apartment by the sea

For sale is a 58 m apartment located on the third floor of a modern new building with an elevator, just a short distance from the sea. The spacious living room with an open-plan kitchen and dining area forms the heart of the home, complemented by one bedroom. From the living area, there is access to a loggia offering a cozy corner for relaxation and outdoor enjoyment with a sea view. The apartment is south-facing, ensuring plenty of natural light and warm sunlight throughout the day.



One of the main advantages of this property is the possibility to customize the interior according to the buyers preferences, allowing the creation of a home that fully reflects individual taste and style. High-quality materials, modern ceramics, sanitary ware, and joinery have been used throughout, with the option to agree on final details with the buyer.



The apartment is equipped with underfloor heating, air-conditioning units, and security doors, while glass railings and a video intercom emphasize the modern, safe, and high-quality character of the space. The building has an elevator, and the buyer has the option to purchase a garage or outdoor parking space.



Located just a few steps from the promenade, beach, restaurants, and all essential amenities, the apartment combines an excellent location, quality construction, and modern design. It is an ideal choice for those seeking a comfortable home by the sea or an exclusive investment in a contemporary coastal property.

Features
Type
Apartment
Contract
Sale
Surface
58 m²
Rooms
1
Bathrooms
1
Garage, car parking
1 in garage/box, 1 parking space
Price information
Price
€ 284,000
Price per m²
4,897 €/m²
Energy efficiency
  • Condition

    New / Under construction
  • Energy certification

    Exempt
Discover every corner of the property
+8
Additional options

Contact the advertiser

Or