map icon

2-room flat new, Omiš

Omiš
€ 289,000
2
69 m²
1

Note

Listing updated on 02/19/2026
Description

This description has been translated automatically and may not be accurate

reference: 2052/93b

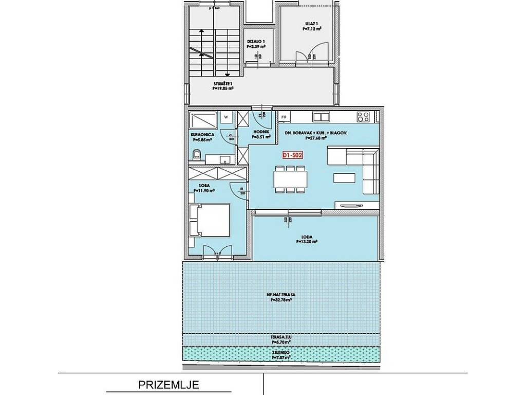
One-bedroom apartment in a new building

For sale is a beautiful 69-square-meter apartment located on the ground floor of a modern new development with an elevator. The apartment consists of comfortable bedroom, a spacious living room connected to the kitchen and dining area, a bathroom, and a loggia that provides a pleasant space for relaxation. From the living area, there is access to an uncovered outdoor terrace surrounded by greenery, giving the apartment a special sense of privacy and tranquility.



The apartment has been designed with great attention to detail and high-quality materials. It is equipped with underfloor heating, security doors, and air conditioning, while premium ceramics, sanitary ware, and joinery have been used throughout. Glass railings and a video intercom system further emphasize the modern and secure character of this home.



The building features an elevator, and depending on the buyers needs, a garage or outdoor parking space can be provided. The terrace and loggia offer a view of the sea, and the apartments location ensures quick and easy access to the seaside promenade, the beach, and all essential amenities such as shops and restaurants.



The uniqueness of this property lies in its exceptional location and thoughtful design, a perfect combination of comfort, elegance, and proximity to the sea, making this apartment an ideal choice for living or as an investment in a premium coastal home.

Features
Type
Apartment
Contract
Sale
Surface
69 m²
Rooms
2
Bathrooms
1
Garage, car parking
1 in garage/box, 1 parking space
Price information
Price
€ 289,000
Price per m²
4,188 €/m²
Energy efficiency
  • Condition

    New / Under construction
  • Energy certification

    Exempt
Discover every corner of the property
+9
Additional options

Contact the advertiser

Or