2-room flat Tar, Tar-Vabriga, Tar-Vabriga

€ 229,985
2
65 m²
1
1
Yes

Note

Listing updated on 03/20/2026
Description

This description has been translated automatically and may not be accurate

reference: IN-2695

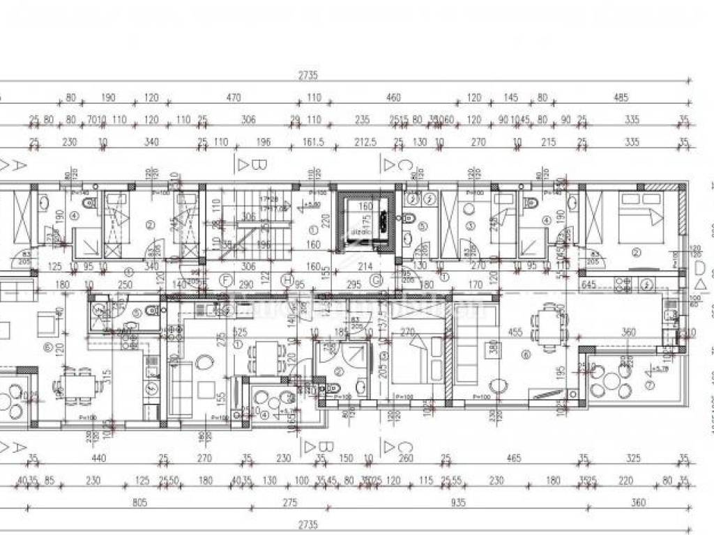
New Build in Tar, First Floor Apartment with elevator

The investor is starting the construction of a residential building with 11 apartments spread over three floors – ground floor, first and second floor – with an elevator included in the project. Construction is scheduled to begin on November 15, 2025, with completion planned by May 1, 2027.

The payment plan foresees: 10% deposit, 50% at the shell stage, 15% after plastering and screed works, 15% upon completion of facade and tiling, and the remaining 10% upon obtaining the occupancy permit.

Each apartment will have two parking spaces. Heating will be provided by an electric underfloor system, and the first phase of air conditioning installation will also be prepared. Windows and doors will be PVC Gealan 9000. Ground floor apartments will have private gardens of approx. 76 m² and 110 m².

The price for larger apartments is €3,500/m², while smaller apartments are €4,000/m².

Provizija agencije za kupca iznosi 3% + PDV i plaća se u slučaju kupovine nekretnine kod zaključenja kupoprodajnog Ugovora.

ID CODE: IN-2695

Euro Immobilien d.o.o.
Mob: 00385994440500
Tel: +385 51 220 024
E-mail: info@euro-immobilien.hr
www.euro-immobilien.hr
Features
Type
Apartment
Contract
Sale
Floor
1 floor
Building floors
3
Lift
Yes
Surface
65 m²
Rooms
2
Bedrooms
2
Bathrooms
1
Balcony
No
Terrace
No
Garage, car parking
2 parking space
Price information
Price
€ 229,985
Price per m²
3,538 €/m²
Energy efficiency
  • Energy certification

    Not classifiable
Discover every corner of the property
+5
Additional options

Contact the advertiser

Or