Single-family detached house 121 m², new, Centar - Gulići, Poreč

€ 505,000
3
121 m²
3+
Yes
Cellar

Note

Listing updated on 05/07/2026
Description

This description has been translated automatically and may not be accurate

reference: 2298_0321

Istria, Poreč

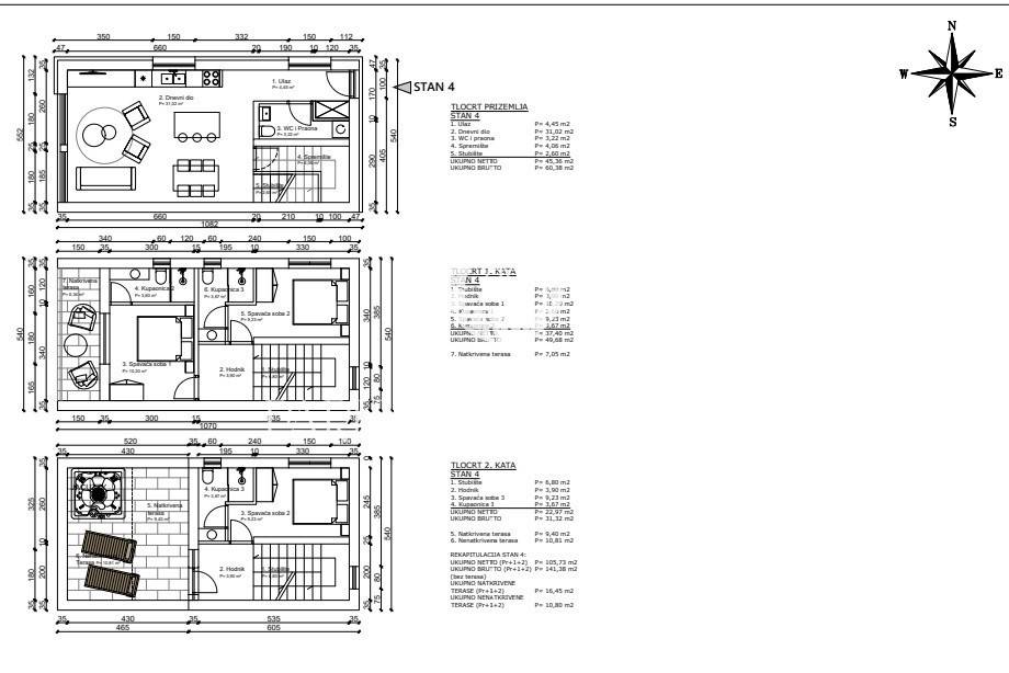
In a new and modern residential building, only approx. 800 m from the sea, a first row terraced house is for sale.

The house extends over three levels: ground floor, first and second floor.

The ground floor consists of an entrance hallway, kitchen, spacious living room with dining area, guest toilet and storage room under the staircase. Large glass walls lead to a covered terrace and a garden of approx. 160 m.

An internal staircase leads to the first floor, where there are two bedrooms, each with its own en-suite bathroom, and a covered terrace.

The second floor features one bedroom, a bathroom and a covered terrace with a jacuzzi, offering a beautiful open view of the sea and surroundings.

The property is equipped with electric underfloor heating throughout, while air conditioning units provide heating and cooling.

The property is in the VAT system.
Planned completion of construction: 2025.

Due to its attractive location and proximity to the sea, this property represents an excellent opportunity for tourist rental or comfortable family living.

Viewing the property is possible with a signed mediation agreement, which is the basis for further action in connection with the sale and commission in accordance with the Act on mediation in real estate transactions. In the case of sales, the agency commission amounts to 3% + VAT and is charged when concluding the pre-contract/sales contract.
If you want to know more, you can talk to Manuela Udovičić.
Features
Type
Single-family detached house
Contract
Sale
Floor
1
Lift
Yes
Surface
121 m² | commercial 237 m²
Rooms
3
Bedrooms
3
Bathrooms
3+
Furnished
No
Garage, car parking
1 parking space
Heating
Independent, floor heating, power supply
Air conditioning
Cold/hot
Surface detail

Residential

Floor
1
Surface
121.0 m²
Coefficient
100%
Surface type
Main
Commercial area
121.0 m²

Land

Floor
Ground floor
Surface
116.0 m²
Coefficient
100%
Surface type
Accessory
Commercial area
116.0 m²
Price information
Price
€ 505,000
Price per m²
2,131 €/m²
Energy efficiency

Energy consumption

A+

Discover every corner of the property
+21
Advertiser
agency card
Additional options

Contact the advertiser

Or