map icon

Apartment 101 m², Privlaka

Privlaka
€ 364,000
101 m²

Note

Listing updated on 04/30/2026
Description

reference: s331

Ekskluzivna novogradnja u Privlaci pokraj Zadra

U ponudi je moderna i kvalitetna stambena zgrada smještena na izvrsnoj lokaciji u Privlaci, mirnom i atraktivnom mjestu nedaleko od Zadra. Nekretnina se nalazi na samo 150 metara od mora i prekrasne pješčane plaže, što budućim vlasnicima omogućuje uživanje u blizini mora, čistom zraku i mediteranskom načinu života. Posebna prednost ove nekretnine su stanovi na prvom i drugom katu koji imaju neometan panoramski pogled na more i otoke zadarskog arhipelaga. Lokacija je mirna i ugodna za život, ali ujedno blizu svih važnih sadržaja poput trgovina, restorana, kafića i šetnica uz more. Zgrada se sastoji od 10 stambenih jedinica te se trenutno nalazi u završnoj fazi izgradnje, a planirani završetak radova i useljenje očekuju se do 01.06.2026. godine. Prilikom gradnje i opremanja koriste se visokokvalitetni materijali i moderna oprema s ciljem osiguravanja dugotrajnosti, energetske učinkovitosti i visokog standarda stanovanja. Stanovi su projektirani s naglaskom na funkcionalan raspored prostorija, puno prirodnog svjetla te prostrane terase idealne za uživanje na otvorenom. Stanovi u prizemlju imaju pripadajuće privatne vrtove koji pružaju dodatni prostor za odmor, druženje, dječju igru ili uređenje vlastite zelene oaze. Ova nekretnina predstavlja odličnu priliku za obiteljski život, odmor ili investiciju u turistički najam s obzirom na veliku potražnju za kvalitetnim nekretninama u ovom dijelu Dalmacije. Prodavatelj je pravna osoba u sustavu PDV-a, što znači da kupac ne plaća porez na promet nekretnina.
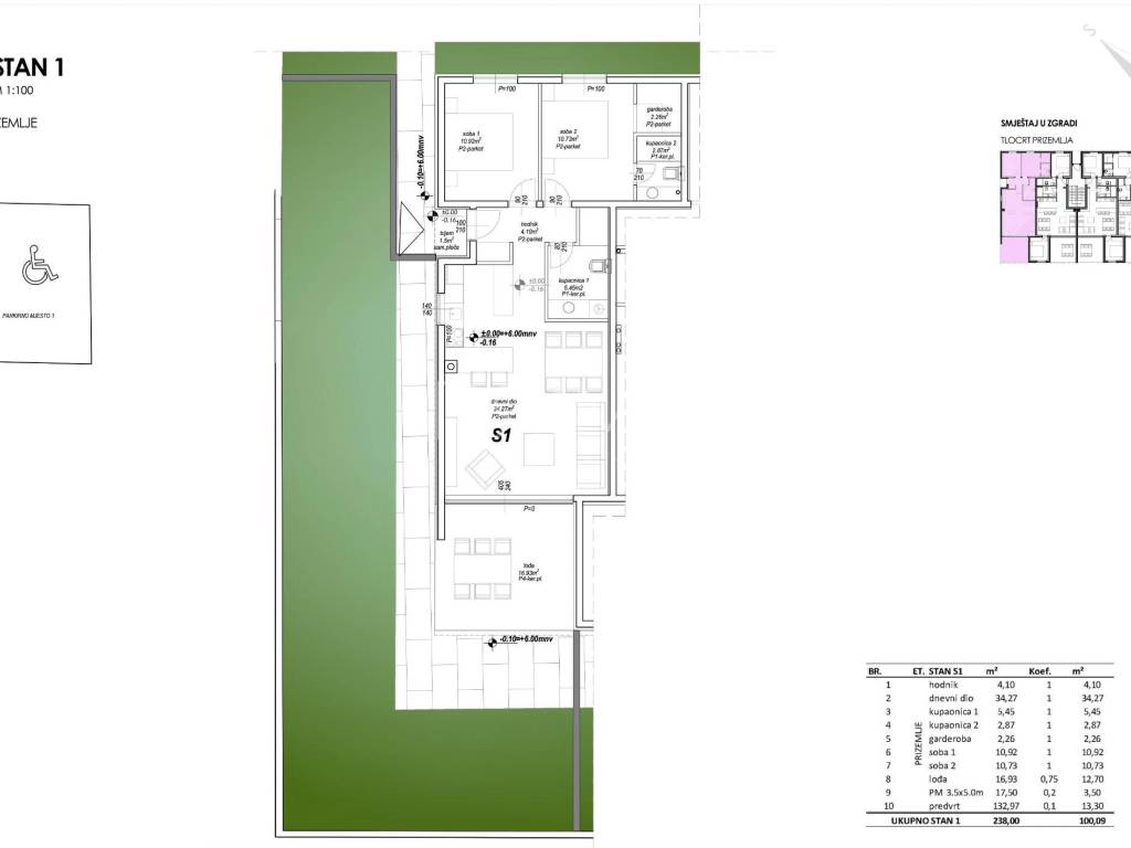
Stan S1 nalazi se u prizemlju moderne novogradnje te ima ukupnu obračunsku površinu od 100,99 m². Odlikuje ga funkcionalan raspored prostorija, puno prirodnog svjetla te veliki privatni vrt koji pruža dodatni prostor za boravak na otvorenom. Stan se sastoji od ulaznog hodnika, prostranog dnevnog boravka s kuhinjom i blagovaonicom površine 34,27 m², dvije spavaće sobe, dvije kupaonice te garderobe. Iz dnevnog boravka izlazi se na natkrivenu lođu površine 16,93 m², koja je idealna za opuštanje i druženje. Posebna prednost ovog stana je veliki privatni vrt površine približno 132,97 m², koji omogućuje uređenje vlastite zelene oaze, prostora za odmor, dječju igru ili roštilj. Uz stan dolazi i osigurano parkirno mjesto. Raspored prostorija: hodnik – 4,10 m²; dnevni boravak + kuhinja + blagovaonica – 34,27 m²; kupaonica 1 – 5,45 m²; kupaonica 2 – 2,87 m²; garderoba – 2,26 m²; spavaća soba 1 – 10,92 m²; spavaća soba 2 – 10,73 m²; lođa – 16,93 m². Stan predstavlja odličnu priliku za stalni boravak, odmor ili investiciju za turistički najam, zahvaljujući privatnom vrtu, funkcionalnom rasporedu i blizini mora.
 
Dostupni stanovi:
PRIZEMLJE (stanovi s vrtom)
S1 – 100,99 m², 2 spavaće sobe – 364.000 €
S2 – 88,41 m², 2 spavaće sobe – 318.700 €
S3 – 87,86 m², 2 spavaće sobe – 316.700 €
S4 – 88,43 m², 2 spavaće sobe – 318.790 €
1. KAT
S5 – 105,60 m², 3 spavaće sobe – 380.688 €
S6 – 107,13 m², 3 spavaće sobe – 386.200 €
S7 – 129,99 m², 2 spavaće sobe – 468.600 €
S8 – 131,06 m², 2 spavaće sobe – 472.470 €
2. KAT
S9 – PRODANO
S10 – PRODANO
Za više informacija, tlocrt stanova ili dogovor oko razgledavanja slobodno nas kontaktirajte.
 
Features
Type
Apartment
Contract
Sale
Surface
101 m²
Furnished
No
Garage, car parking
1 in garage/box
Other features
  • Security door
Price information
Price
€ 364,000
Price per m²
3,604 €/m²
Energy efficiency
  • Year of construction

    2026
  • Energy certification

    Exempt
Discover every corner of the property
+9
Additional options

Contact the advertiser

Or