4-room flat new, first floor, Pulac - Skurinska Draga, Rijeka

€ 625,000
4
99 m²
2
1
Terrace

Note

Listing updated on 04/30/2026
Description

This description has been translated automatically and may not be accurate

reference: 15680

RIJEKA - PULAC, luxury apartment with pool and sea view!

RIJEKA PULAC

MODERN APARTMENT WITH POOL, GARDEN AND SEA VIEW NEW BUILDING!

In a quiet and attractive location, just a few minutes drive from the center of Rijeka, this exceptional 3-bedroom + living room apartment with its own pool, spacious garden and enchanting panoramic views of the sea and the city is for sale.

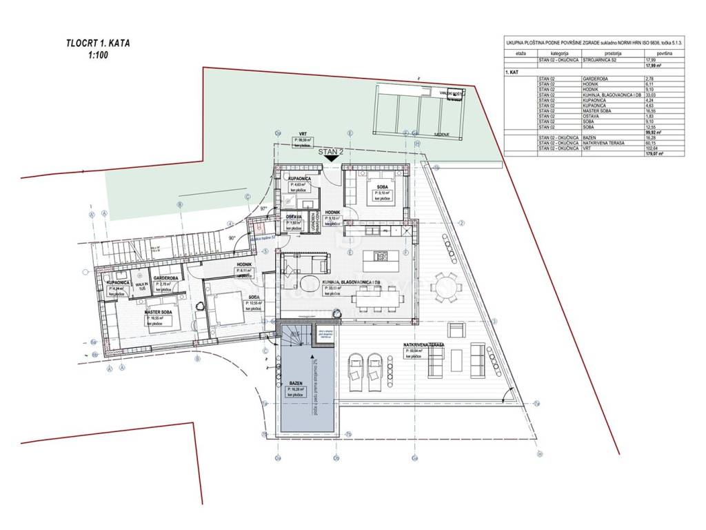
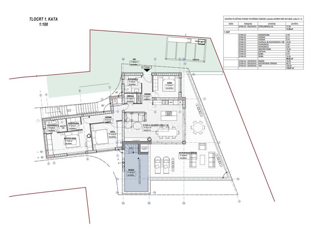
The apartment is located in a top-quality new building and includes 99.92 m2 of elegantly decorated interior: a spacious living room with kitchen and dining room, pantry, bathroom and three bedrooms, including a master bedroom with its own bathroom.

OUTDOOR ENJOYMENT SPACE
What makes this property truly special is the outdoor space perfectly designed for relaxation and social gatherings. At the back of the apartment there is a garden of 102.64 m2 with an outdoor fireplace, while on the south side of the apartment, which is illuminated by the sun throughout the day, there is a luxurious covered terrace of 60.15 m2 with a heated swimming pool with counter-current swimming (16 m2) - the perfect place to relax and enjoy the breathtaking panoramic view of the Kvarner Bay.

ADDITIONAL BENEFITS
3 private parking spaces
Electric vehicle charger

TOP-LEVEL EQUIPMENT
Thermal facade
Daikin underfloor heating
Heat pump with hot water tank - an efficient way to produce hot water for consumption
Daikin A+++ class cooling - 4 indoor units are connected to one 8 kW outdoor unit (split system)
Automatic heating and cooling control in each room separately
Excellent joinery from renowned suppliers provides excellent protection against external influences and heat loss.

This modern property offers you a combination of privacy, comfort and luxury in an excellent micro-location, and with top facilities, it is the perfect place for those looking for a high standard of living in an idyllic setting. This is not only a place to live, but a space to enjoy every moment!

For more information and a viewing appointment, call: +385/99/320-0008

ID CODE: 15680

Marin Baričević
Agent s licencom
Mob: +385(0)99/320-0009
E-mail: marin@smart-invest.hr
www.smart-invest.hr

Denis Dizdar
Agent s licencom
Mob: +385/91/320-0040
E-mail: denis@smart-invest.hr
www.smart-invest.hr
If you want to know more, you can talk to Marin Baričević.
Features
Type
Apartment
Contract
Sale
Floor
1
Surface
99 m² | commercial 201 m²
Rooms
4
Bedrooms
3
Bathrooms
2
Balcony
No
Terrace
Yes
Other features
  • Security door
Surface detail

Residential

Floor
1
Surface
99.0 m²
Coefficient
100%
Surface type
Main
Commercial area
99.0 m²

Land

Floor
Ground floor
Surface
102.0 m²
Coefficient
100%
Surface type
Accessory
Commercial area
102.0 m²
Price information
Price
€ 625,000
Price per m²
3,109 €/m²
Energy efficiency
  • Year of construction

    2025
  • Condition

    New / Under construction
  • Energy certification

    Exempt
Discover every corner of the property
+20
Additional options

Contact the advertiser

Or