

Note
This description has been translated automatically by Google Translate and may not be accurate
reference: 3-70199
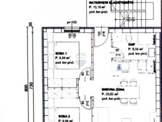
Condo/Apartment Čižići, Dobrinj, 73,84m2
Year of construction
2025Air conditioner
Independent, cold/hotEnergy certification
Not classifiable