1/20


Appartement 2 chambres neuf, troisième étage, Kman - Visoka - Sućidar, Split
€ 253 000
Annonce mise à jour le 30/04/2026
Description
référence: EK-2445541
Split, new construction apartments for sale.
Caractéristiques
- Typologie
- Appartement | Pleine propriété | Classe propriété haut de gamme
- Transaction
- Vente | Bien immobilier à revenu
- Étage
- 3
- Étages du bâtiment
- 3
- Ascenseur
- Oui
- Superficie
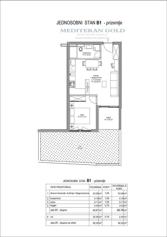
- 42 m²
- Chambres/pièces
- 2
- Chambres
- 1
- Cuisine
- Cuisine américaine
- Bains/douches
- 1
- Meublé
- Non
- Balcon
- Oui
- Terrasse
- Non
- Box, places stationnement
- 1 dans garage/box, 1 place(s) de parking
- Chauffage
- Individuel, avec radiateurs, alimentation électrique
- Climatisation
- Autonome, froid/chaud
- Vue
- Mer
Autres caractéristiques
- Cadres extérieurs triple vitrage / PVC
- Exposition externe
- Fibre optique
- Porte blindée
- Système d'alarme
- Système TV simple
- Vidéophone
Détail de la surface
Habitation
- Étage
- 3
- Superficie
- 42,2 m²
- Coefficient
- 100%
- Type de superficie
- Habitable
- Sup. commercial
- 42,2 m²
Informations sur les prix
- Prix
- € 253 000
- Prix au m²
- 6 024 €/m²
Efficacité énergétique
Consommation d'énergie
≥ 250 kWh/m² annéeA+
Plan

Découvrez chaque recoin de la propriété
Options additionnelles