Appartement 3 chambres Krk, Centar, Krk

€ 780 000
3
167 m²
2
1
Non
Balcon
Terrasse

Remarque

Annonce mise à jour le 22/01/2026
Description

This description has been translated automatically and may not be accurate

référence: 322

A new building for sale on the island of Krk. The apartment has a total of 167 m2. The closed part is about 123 m2 + terrace and 2 parking spaces. The apartment consists of: 3 bedrooms, hallway, 2 bathrooms and 1 toilet, living room with kitchen and large terrace. The apartment is two-storey and has access to the upper floor, i.e. to the roof with a swimming pool. The building is finished and has two floors.
The location is in Mali Kartec on the island of Krk. Plav beach is 400 m away, and the town of Krk is 1 km away.

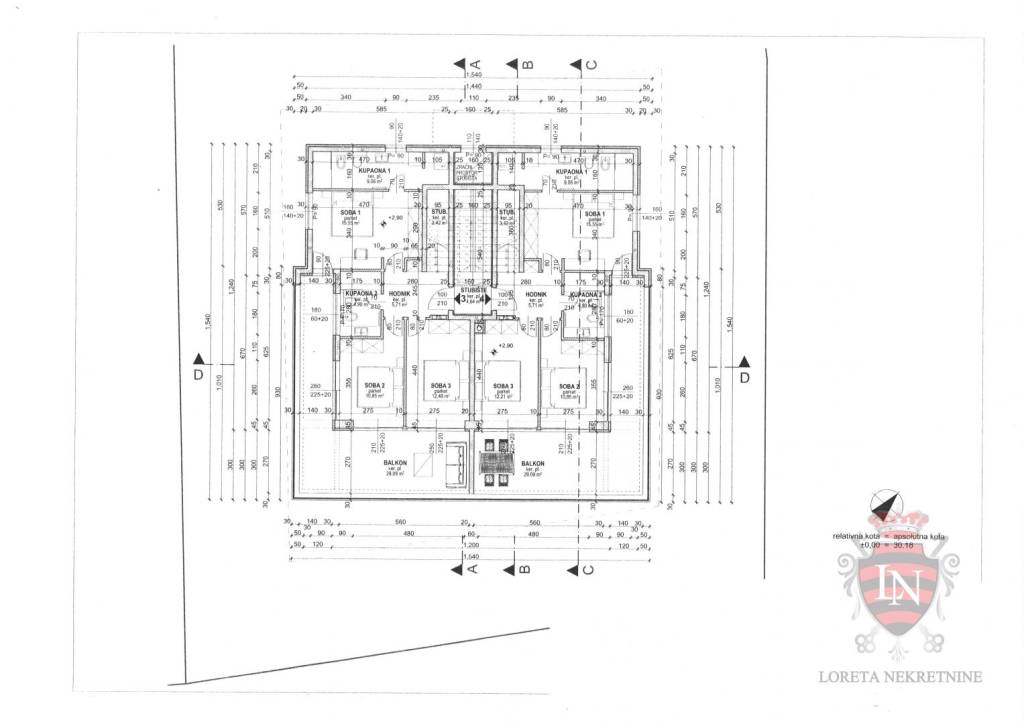
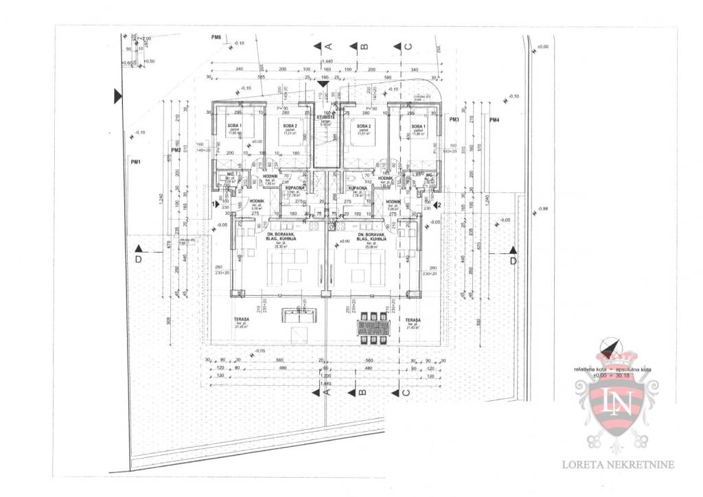
Floor plan of the apartment:
Room 1 – 15.55 m2
Room 2 – 10.85 m2
Room 3 – 12.21 m2
Hallway 1 – 5.71 m2
Stubište – 3,42 - 3,42 - 3,94 m2
Bathroom 1 – 9.06 m2
Bathroom 2 – 4.90
Toilet – 2.66 m2
Balcony – 29.09 m2
Living room, kitchen and dining room – 48.04 m2
Terrace – 12.96 m2
Balcony – 28.96 m2
Terrace - 54.65 m2
Engine room - 3.50 m2
Swimming pool - 16.24 m2

DETAILS ABOUT THE BUILDING
Heated exterior walls:
Exterior wall
Lime-cement plaster
Mineral vuna
Polymer cement plaster with fiberglass mesh
Acrylic plaster

Flat and pitched roofs:
Roof terrace
Ceramic tiles
Concrete in the fall
TPO-based polymer waterproofing
Extruded polystyrene
PE foil
Reinforced concrete
Lime-cement plaster

Green roof:
Earth
Filter layer
Drainage layer
Felt
TPO-based polymer waterproofing
Expanded polystyrene
PE foil
Reinforced concrete
Lime-cement plaster

Ceiling above the heated facing the pool:
Epoxy
Reinforced concrete
Polymer waterproofing based on PVC-P
Extruded polystyrene
PE foil
Reinforced concrete
Lime-cement plaster

Ceiling above the heated towards the terrace:
Ceramic tiles
Cement screed
Polymer waterproofing based on PVC-P
Expanded polystyrene
PE foil
Reinforced concrete
Lime-cement plaster

Ceilings between heated floors:
Interfloor construction:
Ceramic tiles
Cement screed
PE foil
Elastificirani EPS
Reinforced concrete
Lime-cement plaster

Interfloor construction:
Parquet
Cement screed
PE foil
Elatified EPS
Reinforced concrete
Lime-cement plaster

Flooring on the ground:
Floor on the background:
Ceramic tiles
Cement screed
PE foil
Extruded polystyrene foam
Reinforced concrete
Extruded polystyrene foam
Polymer waterproofing
Concrete
Sand, gravel, gravel

Floor on the background:
Parquet
Cement screed
On foil
Extruded polystyrene foam
Reinforced concrete
Extruded polystyrene foam
Polymer waterproofing
Concrete
Sand, gravel, gravel

For all questions contact phone 098 / 915 - 5643 ( Ivan )

LORETA REAL ESTATE
Loreta Services Office: Tel: 01 / 3866 - 844
Zagrebačka avenija 100a, 10 000 Zagreb
www.loreta-nekretnine.com

ID CODE: 322

Ivan Bošković
Agent s licencom
Mob: 098/9155-643
Tel: 01/3866 844
E-mail: ivan.boskovic@loreta.hr
www.loreta.hr
Caractéristiques
Typologie
Appartement
Transaction
Vente
Étage
1 étage
Étages du bâtiment
2
Ascenseur
Non
Superficie
167 m²
Chambres/pièces
3
Chambres
3
Bains/douches
2
Balcon
Oui
Terrasse
Oui
Box, places stationnement
2 place(s) de parking
Chauffage
Individuel, avec air
Climatisation
Autonome, froid/chaud
Autres caractéristiques
  • Système d'alarme
Informations sur les prix
Prix
€ 780 000
Prix au m²
4 671 €/m²
Efficacité énergétique

Consommation d'énergie

A+

Plan
Découvrez chaque recoin de la propriété
+26
Options additionnelles

Contacter l'annonceur

Ou