1/11


Appartement 4 chambres Donja Jaska, Jastrebarsko, Jastrebarsko
€ 313 348
Annonce mise à jour le 27/01/2026
Description
This description has been translated automatically by Google Translate and may not be accurate
référence: 464
ID CODE: 464
Kristian Mikec
Direktor
Mob: 095 299 9996
E-mail: k.mikec@homefinder.hr
www.homefinder.hr
Caractéristiques
- Typologie
- Duplex
- Transaction
- Vente
- Ascenseur
- Non
- Superficie
- 113 m²
- Chambres/pièces
- 4
- Chambres
- 3
- Bains/douches
- 2
- Balcon
- Non
- Terrasse
- Non
- Box, places stationnement
- 2 place(s) de parking
- Chauffage
- Individuel, avec air
- Climatisation
- Autonome, froid/chaud
Autres caractéristiques
Informations sur les prix
- Prix
- € 313 348
- Prix au m²
- 2 773 €/m²
Efficacité énergétique
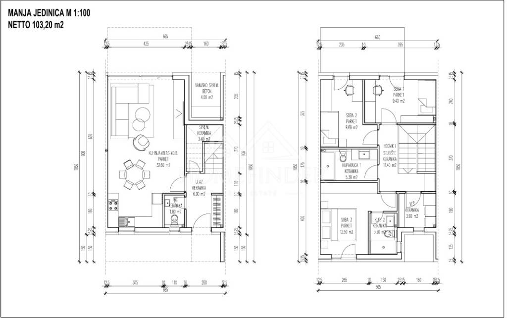
Plan

Découvrez chaque recoin de la propriété
Options additionnelles