1/9


Appartement 4 chambres Donja Jaska, Jastrebarsko, Jastrebarsko
€ 313 458
Annonce mise à jour le 22/01/2026
Description
This description has been translated automatically by Google Translate and may not be accurate
référence: 687
ID CODE: 687
Centralno
Mob: +385 95 299 9996
E-mail: info@homefinder.hr
www.homefinder.hr
Caractéristiques
- Typologie
- Duplex
- Transaction
- Vente
- Ascenseur
- Non
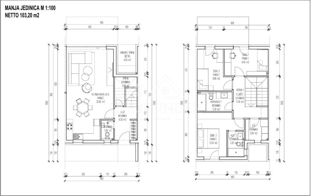
- Superficie
- 113 m²
- Chambres/pièces
- 4
- Chambres
- 3
- Bains/douches
- 2
- Balcon
- Non
- Terrasse
- Non
- Box, places stationnement
- 2 place(s) de parking
- Chauffage
- Individuel, avec air
- Climatisation
- Autonome, froid/chaud
Autres caractéristiques
Informations sur les prix
- Prix
- € 313 458
- Prix au m²
- 2 774 €/m²
Efficacité énergétique
Plan

Découvrez chaque recoin de la propriété
Options additionnelles