Maison individuelle Krk, Centar, Krk

€ 3 300 000
5+
345 m²
3+
Non
Terrasse

Remarque

Annonce mise à jour le 22/01/2026
Description

This description has been translated automatically and may not be accurate

référence: 2377

Located on the island of Krk, this luxurious villa with an infinity pool offers a mesmerizing view of the island of Cres and offers the perfect blend of modern design and an escape from the hustle and bustle of city life.

It is located on a plot of 842 m², in a gated community with controlled access, providing a high level of security and privacy - similar to a private resort.

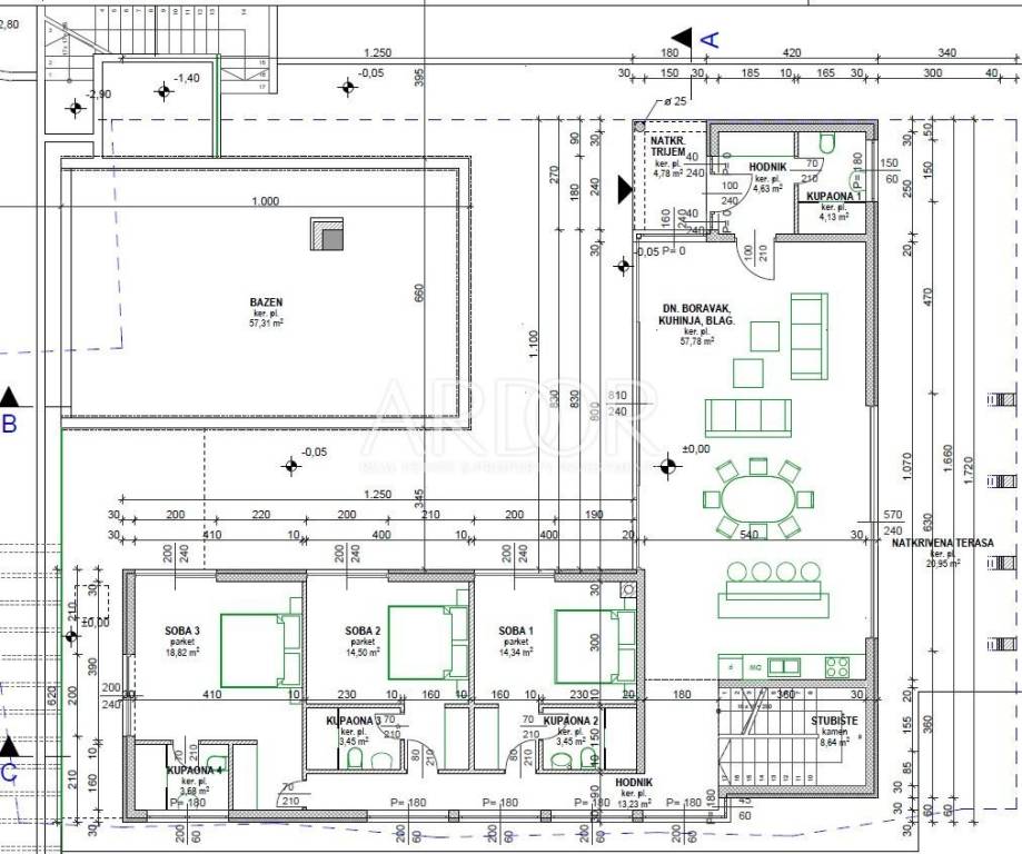
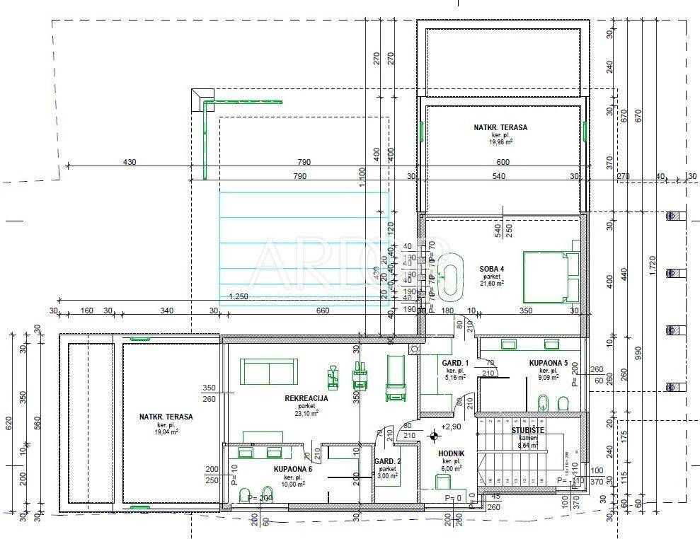
The villa is carefully designed, spread over two floors and comprises a total of 247 m² of interior furnished and decorated to provide all the modern amenities you need for a relaxed lifestyle.

It consists of five spacious bedrooms, each with its own bathroom, an open-plan living room, dining room and kitchen with access to several covered and uncovered terraces, ideal for enjoying the outdoors.

Floor-to-ceiling windows allow for plenty of natural light and unobstructed views of the sea and greenery.

The upper floor contains two master bedrooms with walk-in wardrobes, bathtubs and access to a spacious terrace with panoramic sea views. The room also includes a wellness area with a Finnish and infrared sauna.

The outdoor area is a true oasis with a 66 m² heated infinity pool with a waterfall, surrounded by Mediterranean plants and a sunbathing area, while the garden terrace with a spacious dining room, summer kitchen and barbecue allows you to enjoy the Mediterranean lifestyle.

The basement further enriches this luxurious villa - it contains a fitness area, a tavern and a 45 m² wine cellar.

Heating and cooling are provided by underfloor heating and air conditioning in every room.

This exceptional property on the island of Krk offers the perfect blend of modern design, natural beauty and quality amenities just a 25-minute drive to the nearest airport.

The island of Krk is known for its beautiful beaches, Mediterranean landscape and rich cultural heritage, providing endless opportunities for outdoor activities and relaxation.

Dear buyers, in accordance with the Real Estate Brokerage Act, viewing the property is possible only with the signature of a Brokerage Agreement. According to the same, the buyer is obliged to pay an agency commission in the event of a purchase.

ID CODE: 2377

Ingrid Jelaska
Agent s licencom
Mob: 0919374797
Tel: +385 98 443 289
E-mail: ingrid.jelaska@ardor-realestate.com
www.ardor-realestate.com
Caractéristiques
Typologie
Maison individuelle
Transaction
Vente
Étages du bâtiment
2
Ascenseur
Non
Superficie
345 m²
Chambres/pièces
5+
Chambres
5
Bains/douches
3+
Balcon
Non
Terrasse
Oui
Box, places stationnement
4 place(s) de parking
Chauffage
Individuel, avec air
Climatisation
Autonome, froid/chaud
Autres caractéristiques
  • Système d'alarme
Informations sur les prix
Prix
€ 3 300 000
Prix au m²
9 565 €/m²
Efficacité énergétique
  • Année de construction

    2020
  • Chauffage

    Individuel, avec air
  • Climatisation

    Autonome, froid/chaud
  • Certification énergétique

    Non classifiable
Plan
Découvrez chaque recoin de la propriété
+22
Options additionnelles

Contacter l'annonceur

Ou