Terrain constructible en Vente

€ 145 000
974 m²

Remarque

Annonce mise à jour le 22/01/2026
Description

référence: ID04054

Poreč okolica, zemljište sa projektom i građevinskom dozvolom

Prodaje se građevinsko zemljište u mirnom naselju u okolici Poreča, ukupne površine 974 m², s projektom i građevinskom dozvolom za gradnju istarske vile. Zemljište se nalazi na manjem brežuljku i nudi predivan pogled na prirodu, dok s prizemlja i prvog kata vile možete uživati i u pogledu na more. Struja i voda su plaćeni te su već postavljeni na parceli, što omogućava brzi početak gradnje.

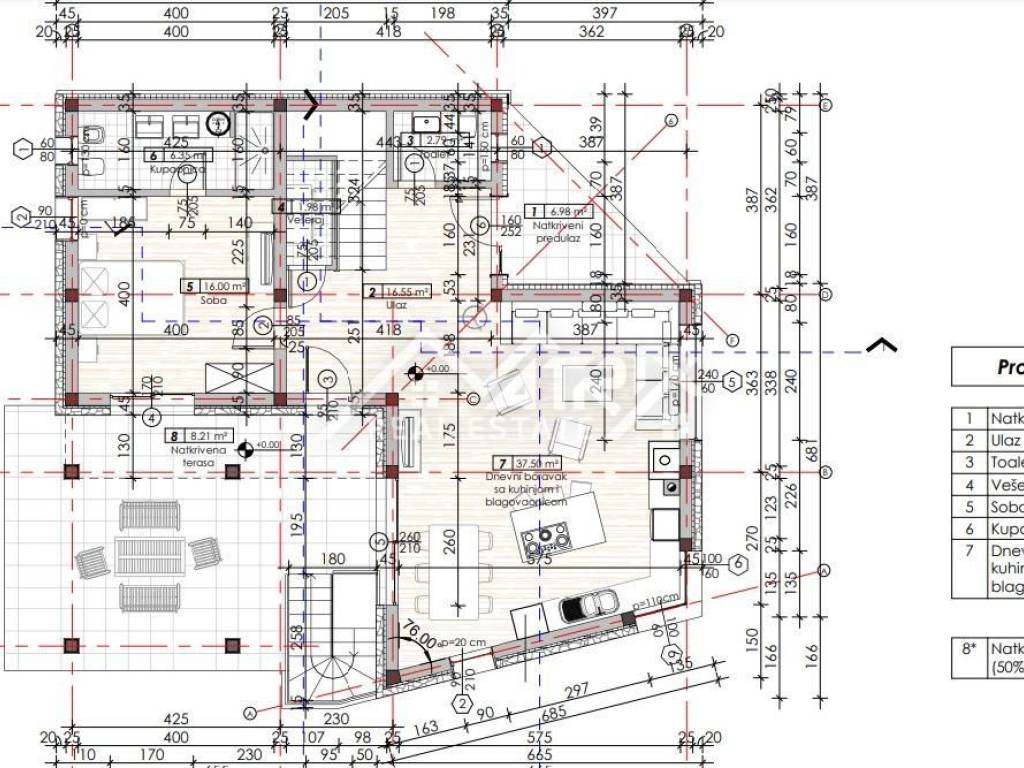
Projekt vile i mogućnosti gradnje: Planirana vila ima 168 m² stambene površine, s tri spavaće sobe, tri kupaonice te prostranim dnevnim boravkom, kuhinjom i blagovaonicom u open space konceptu. U projektu je predviđena i podzemna kotlovnica ispod stepenica. Veličina parcele omogućava dodavanje bazena te je moguće izraditi zaseban projekt za bazen, čime se dodatno povećava vrijednost i privlačnost nekretnine.

Idealna lokacija za miran život i blizina svih sadržaja: Zemljište je smješteno u posljednjoj građevinskoj zoni u mjestu, okruženo prekrasnim istarskim kamenim vilama. Sve važne pogodnosti nalaze se na nekoliko minuta vožnje – trgovina, restorani, škola, vrtić, dječji park, frizerski salon, kozmetički studio, fitness centar, pošta i apoteka. Do mora i najbližih plaža stiže se za samo 15 minuta ugodne vožnje.

Ova nekretnina je savršena za ljubitelje prirode i mirnog života, pružajući idealnu kombinaciju privatnosti, blizine mora i svih potrebnih sadržaja. Idealna je za izgradnju obiteljske vile ili luksuzne nekretnine za najam, uz potpunu pripremljenost za početak gradnje.

ID CODE: ID04054

Matrix Real Estate
Voditelj ureda
Mob: +385 52 417 779
Tel: +385 52 417 779
E-mail: info@matrixrealestate.hr
https://matrixrealestate.hr/
Caractéristiques
Transaction
Vente
Typologie
Terrain constructible
Superficie
974 m²
Informations sur les prix
Prix
€ 145 000
Prix au m²
149 €/m²
Découvrez chaque recoin de la propriété
+5
Options additionnelles

Contacter l'annonceur

Ou