1/11


Appartement 3 chambres Ladrovići, Poreč, Žbandaj, Poreč
€ 215 000
Annonce mise à jour le 30/01/2026
Description
This description has been translated automatically by Google Translate and may not be accurate
référence: 3456
ID CODE: 3456
Mirjana Vlahović
Agent s licencom
Mob: +385 95 5161 641
Tel: +385 52 774 199
E-mail: mirjana.vlahovic@mololongorealestate.com
www.mololongorealestate.com
Zoran Stupar
Agent s licencom
Mob: +385 99 5705 551
Tel: +385 52 774 199
E-mail: zoran.stupar@mololongorealestate.com
www.mololongorealestate.com
Caractéristiques
- Typologie
- Appartement
- Transaction
- Vente
- Étage
- 1 étage
- Ascenseur
- Non
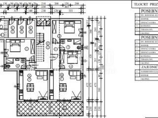
- Superficie
- 69 m²
- Chambres/pièces
- 3
- Chambres
- 2
- Bains/douches
- 1
- Balcon
- Non
- Terrasse
- Non
- Box, places stationnement
- 1 place(s) de parking
- Chauffage
- Individuel, avec air
- Climatisation
- Autonome, froid/chaud
Informations sur les prix
- Prix
- € 215 000
- Prix au m²
- 3 116 €/m²
Découvrez chaque recoin de la propriété
Options additionnelles