map icon

Chalet 108 m², Šibenik

Šibenik
€ 145 000
3
108 m²
3+

Remarque

Annonce mise à jour le 19/02/2026
Description

This description has been translated automatically and may not be accurate

référence: 5357/30

A stone house for renovation is for sale in an attractive location near the city center and Banj beach.

In essence, it is two stone houses that can be combined into one. In the option of upgrading, the house has a sea view. The house has a water, electricity and sewage connection. It is possible to buy the buildings separately; the smaller one for 70,000 and the larger one for 80,000.

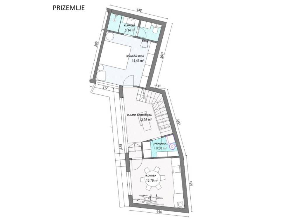
The price includes a project for a furnished family house with a usable living area of 103.8 m2 or a project for a modern house with a living area of 160 m2, which extends over three floors (all complete up to the building permit).

The first project envisages a functional layout with an entrance area on the ground floor with a hallway, bathroom, wellness room with sauna and two bedrooms, each with its own bathroom.

The internal stairs lead to the next floor, where there is an open space that unites the kitchen, dining room and living room, and on the gallery floor there is a bedroom and a work area.

Through the living room there is an exit to the terrace with a summer kitchen and a space intended for socializing.

There is also an option for a modern house with a living area of 160 m2, which extends over three floors and contains a tavern, an entrance hall with an engine room and a laundry room, and a master bedroom with a bathroom. On the first floor there are two bedrooms with two modern bathrooms and one toilet, while on the second floor there is a large living room, a dining room with a bar and a spacious kitchen and an exit to the roof terrace above the whole house with a wonderful view of the sea.

The house is located near Banj beach and the fortress of St. Mihovil, elementary schools, kindergartens and all other facilities needed for a pleasant urban life.

Caractéristiques
Typologie
Chalet
Transaction
Vente
Superficie
108 m²
Chambres/pièces
3
Bains/douches
3+
Informations sur les prix
Prix
€ 145 000
Prix au m²
1 343 €/m²
Efficacité énergétique
  • Certification énergétique

    Exempt
Découvrez chaque recoin de la propriété
+7
Options additionnelles

Contacter l'annonceur

Ou