Bureau - Cabinet en Location

Prix sur demande
169 m²
0

Remarque

Annonce mise à jour le 14/04/2026
Description

référence: EUROVILLA-653255

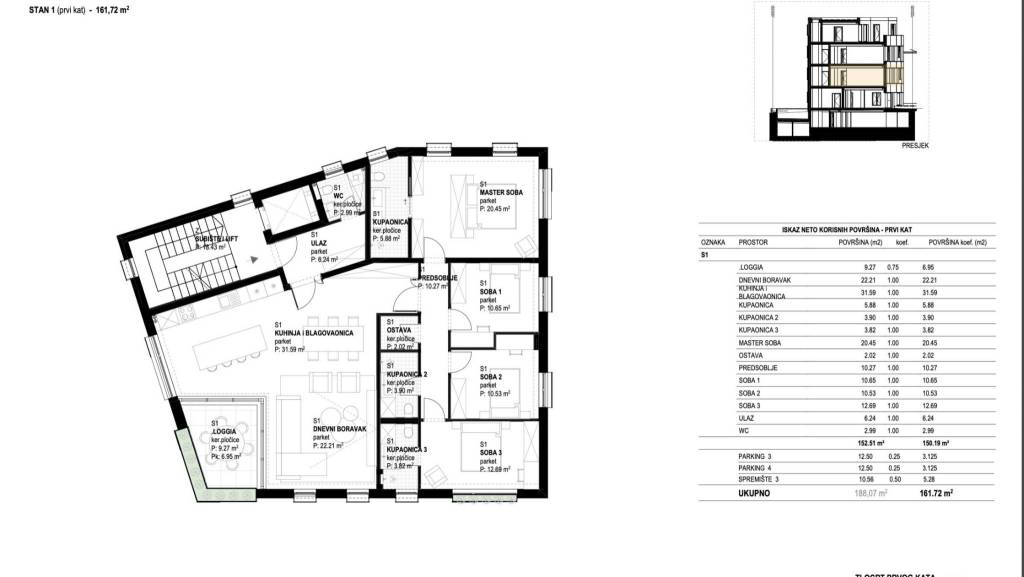
Iznajmljuje se prvi kat u iznimno atraktivnoj stambeno-poslovnoj zgradi u izgradnji, zgrada je smještena na vrhunskoj, frekventnoj lokaciji u samom srcu grada. Ova reprezentativna zgrada spaja suvremeni dizajn s funkcionalnošću, pogodnu za razne namjene.Najam uključuje:Prvi kat (168,62 m2)zauzima luksuzan četverosobni stan, idealan i za stambenu i za poslovnu upotrebu. Sastoji se od prostrane kuhinje s blagovaonicom, tri spavaće sobe - svaka sa svojom kupaonicom, dodatnog toaleta pri ulazu, ostave te loggie koja također može imati poslovnu funkciju.Dodatne pogodnosti:Stanu pripadaju dva gražna mjesta.Zgrada je projektirana prema najvišim standardima gradnje, a završetak radova predviđen je do kraja 2025. godine.Ova jedinstvena nekretnina nudi izvanrednu priliku za one koji traže prestižnu adresu, funkcionalnost i udobnost na vrhunskoj lokaciji. Preferencijalno se iznajmljuje za tihu djelatnost- poliklinika, optika, pediker...Za sve dodatne informacije i razgledavanje, slobodno nas kontaktirajte.... Više na eurovilla.hr, ID: 653255
Si vous voulez en savoir plus, vous pouvez parler à Nenad Tatarinov.
Caractéristiques
Transaction
Location
Typologie
Bureau - Cabinet
Superficie
169 m²
Étage
Rez-de-chaussée
Box, places stationnement
8 dans garage/box
Détail de la surface

Autre

Étage
Rez-de-chaussée
Superficie
169,0 m²
Coefficient
100%
Type de superficie
Habitable
Sup. commercial
169,0 m²
Informations sur les prix
Prix
Prix sur demande
Détails des coûts
Caution
Non indiquée
Plan
Découvrez chaque recoin de la propriété
+16
Options additionnelles

Contacter l'annonceur