Maison individuelle 394 m², neuve, Rovinj

€ 1 295 000
5
394 m²
3+
Terrasse

Remarque

Annonce mise à jour le 19/03/2026
Description

This description has been translated automatically and may not be accurate

référence: 46069

ISTRIA, ROVINJ - Detached exclusive villa, new building with swimming pool

OPPORTUNITY!

Detached exclusive villa consists of three above-ground floors and a basement with a total usable net living area of 394 m2 + a garden of 376 m2 with a heated swimming pool measuring 10x3m (30m2).

- THE BASEMENT of the house contains; boiler room, rooms, storage rooms, a large tavern with a fireplace, bathroom,
staircase and hallway.

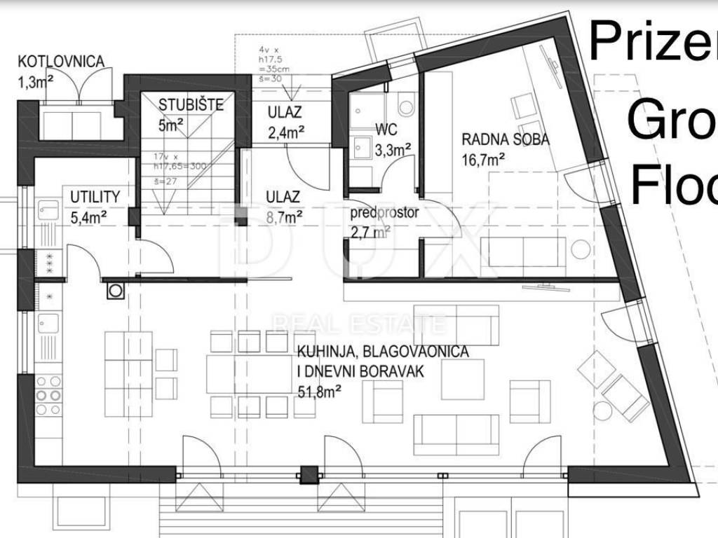
- GROUND FLOOR of the house contains; hallway, living room with a fireplace, kitchen, pantry, room,
bathroom and staircase.

- FIRST FLOOR of the house contains: hallway, three bedrooms, one of which is a master room with a dressing room
bathroom and terrace, bathroom and staircase.

- SECOND FLOOR of the house contains: staircase, relaxation area designed to accommodate a jacuzzi, shower cabin and
toilet, and a beautiful terrace of 90m2 and panoramic views. The RELAX zone is intended for
relaxation in the jacuzzi all year round.

- SWIMMING POOL: heated pool measuring 10x3m (30m2).

There is underfloor heating in all rooms, built-in fan coil units for heating and cooling, in bathrooms and on
the staircase also has radiators.

All carpentry in the building is aluminum Schuco with Roltek built-in boxes, electric blinds
drive and glass fences.

Electrical installations: KNX system

Heating/cooling:
Gas boiler room
Underfloor heating in all rooms
Air conditioning: Yes
Cogeneration
Heat pumps
Solar panels

Utilities:
City gas
City water supply
City sewage

Permits:
building permit
title deed
Occupancy permit
Energy certificate A+

Garden:
Swimming pool, 30m2, dimensions 10x3m
Terrace with barbecue

Technology:
Alarm system
Video surveillance
Intercom
KNX

This property is only approx. 2.08 km as the crow flies from the sea!

UNIQUE PROPERTY IN AN EXCELLENT AND UNIQUE LOCATION WITH GREAT POTENTIAL!!!

Certainly a property for family life, but also suitable as an investment in the form of tourism.

Rovinj (Italian: Rovigno, officially Rovinj-Rovigno) is a city in the western part of Croatia. It is located on the western coast of Istria. Together with Poreč, it forms the tourist center of Istria, and is one of the most attractive tourist destinations on the Adriatic. The area of the city of Rovinj borders the municipalities of Bale, Kanfanar, Sv. Lovreč and Vrsar.

The city of Rovinj-Rovigno is located at 45 04' latitude and 13 38' longitude. The Rovinj region or Rovinjština is 80 km.

The climate of Rovinj is Mediterranean. The average annual temperature is 16C. The average temperature in January is 4.8C and in July 22.3C. The vegetation is subtropical. 940 mm of rain falls annually and the annual average humidity is 72%.

Rovinj is located in the area of Red Istria, or red soil (crljenica). There are 22 islands or islets in the Rovinj archipelago, of which Sv. Andrija and Sv. Katarina are the largest, and Bili Školj and others are also included. In the north of the Rovinj area, Rovinj borders the municipality of Vrsar, with which it shares the Limski Kanal bay, and in the south with the municipality of Bale.

Dear clients, the agency commission is charged in accordance with the General Terms and Conditions.
www.dux-nekretnine.hr/opci-uvjeti-poslovanja

ID CODE: 46069

Rene Nemarnik
Agent s licencom
Mob: +385 91 737 5328
Tel: +385 91 480 8808
E-mail: rene@dux-nekretnine.hr
www.dux-nekretnine.hr
Si vous voulez en savoir plus, vous pouvez parler à Rene Nemarnik.
Caractéristiques
Typologie
Maison individuelle
Transaction
Vente
Étage
1
Superficie
394 m² | commerciale 770 m²
Chambres/pièces
5
Chambres
5
Bains/douches
3+
Balcon
Non
Terrasse
Oui
Climatisation
Autonome, froid/chaud
Autres caractéristiques
  • Piscine
Détail de la surface

Habitation

Étage
1
Superficie
394,0 m²
Coefficient
100%
Type de superficie
Habitable
Sup. commercial
394,0 m²

Terrain

Étage
Rez-de-chaussée
Superficie
376,0 m²
Coefficient
100%
Type de superficie
Accessoires
Sup. commercial
376,0 m²
Informations sur les prix
Prix
€ 1 295 000
Prix au m²
1 682 €/m²
Efficacité énergétique

Consommation d'énergie

A+

Découvrez chaque recoin de la propriété
+17
Options additionnelles

Contacter l'annonceur

Ou