map icon

Maison mitoyenne 4 pièces, neuve, Klinča Sela

Klinča Sela
€ 250 000
4
111 m²
3
Non
Terrasse

Remarque

Annonce mise à jour le 01/05/2026
Description

This description has been translated automatically and may not be accurate

référence: EK-655391

For sale is a newly built terraced house with a total living area of 112 m², as part of a semi-detached building, located in a quiet street in Klinča Selima. This property is ideal for families looking for a quality and functional home near Zagreb, with excellent transport connections and planned infrastructure for the future.

Location:
The property is located in a family settlement, only 400 m from the bus station (Jastrebarsko - Zagreb line), 1 km from the train station and in the immediate vicinity of the planned kindergarten (50 m) and new elementary school (600 m). There is also an existing kindergarten, school and children's playground nearby - everything you need for a comfortable family life.

Quality construction and modern materials:
Foundation slab: reinforced concrete with 10 cm XPS insulation and V4 cardboard
Walls: Porotherm 25 with AB rings
Ceilings: 20 cm thick AB panels
Roof: flat, with TPO foil and 20 cm EPS
Facade: 12 cm EPS (STO system)
Carpentry: PVC (anthracite) with mosquito nets and electric shutters

Interior - modern and functional
Walls: plasterboard partitions, painted white
Floors: three-layer oak parquet (Bjelin) and ceramics (Marazzi)
Heating: heat pump (Hyundai), underfloor heating with thermostats
Cooling: air conditioning on the ground floor and upstairs
Preparation for air recovery
Sanitary fixtures: Hansgrohe, TECE cisterns
Electrical installations: TEM modular system

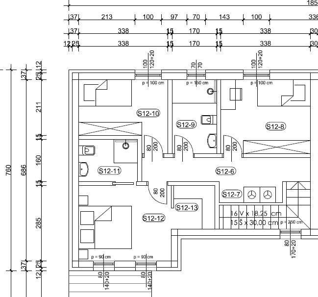
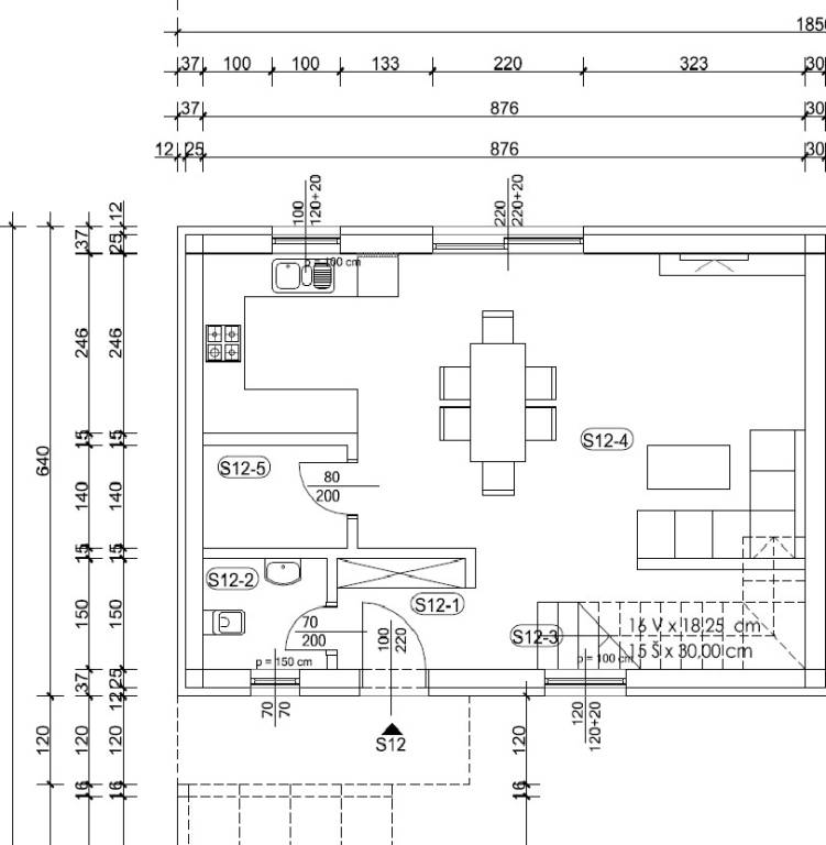
Room layout (94m²):
Entrance hall, WC, living room with dining room and kitchen
3 bedrooms
2 bathrooms and additional WC
Wardrobe, hallways, storage and laundry room

Outdoor area (98 m²)
Yard enclosed by concrete parapet and panel fence
Terrace made of decking material
Connections: water, sewage, electricity (7.36 kW)
Preparation for solar power plant and electric vehicle charger

Construction status:
The property is under construction - completion of works is planned by the end of 2026.
Buyers are currently allowed to participate in selecting the finishing details.

Sales status of the property:
There are only 6 two-story apartments of the same living area left, but with different yard sizes, which affects the price - depending on your wishes. This project represents an extremely favorable opportunity considering its potential!

For more information or to arrange a viewing - feel free to contact 099/2083397!
Si vous voulez en savoir plus, vous pouvez parler à Stipe Jurčić.
Caractéristiques
Typologie
Maison mitoyenne | Pleine propriété | Propriété de luxe
Transaction
Vente
Étage
Rez-de-chaussée, 1
Étages du bâtiment
1
Ascenseur
Non
Superficie
111 m²
Chambres/pièces
4
Chambres
3
Cuisine
Cuisine/semi-salle à manger
Bains/douches
3
Meublé
Non
Balcon
Non
Terrasse
Oui
Box, places stationnement
3 place(s) de parking
Chauffage
Individuel, au sol, alimenté par pompe à chaleur
Climatisation
Autonome
Autres caractéristiques
  • Borne de recharge pour voitures électriques
  • Cadres extérieurs triple vitrage / PVC
  • Double exposition
  • Porte blindée
  • Toilettes séparées
Détail de la surface

Habitation

Étage
Rez-de-chaussée
Superficie
56,0 m²
Coefficient
100%
Type de superficie
Habitable
Sup. commercial
56,0 m²

Habitation

Étage
1
Superficie
38,0 m²
Coefficient
100%
Type de superficie
Habitable
Sup. commercial
38,0 m²

Extérieur

Étage
Rez-de-chaussée
Superficie
94,0 m²
Coefficient
18.5%
Type de superficie
Habitable
Sup. commercial
17,4 m²
Informations sur les prix
Prix
€ 250 000
Prix au m²
2 252 €/m²
Efficacité énergétique

Consommation d'énergie

≥ 250 kWh/m² annéeA+

Plan
tlocrt3
tlocrt2
Découvrez chaque recoin de la propriété
+18
Options additionnelles

Contacter l'annonceur

Ou